ZENKAYA HOUSE
Eric Bigot es el diseñador de este módulo (Zenkaya house) prefabricado con el que se esfuerza por ofrecer una arquitectura prefabricada de diseño, teniendo muy en cuenta la calidad. Ofrece paredes y techos altamente aislantes, así como ventanas correderas de doble cristal.
Estos módulos fueron diseñados con la intención de crear una mimetizacion con el entorno, llevando el exterior al interior mediante grandes aberturas que da la sensación de vivir al aire libre. Para su construcción se utilizan únicamente materiales y artesanos de gran calidad con el fin de proporcionar el mejor producto.
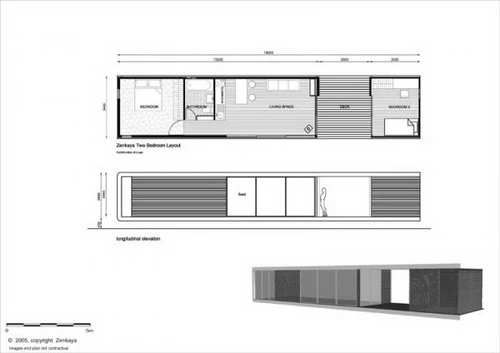
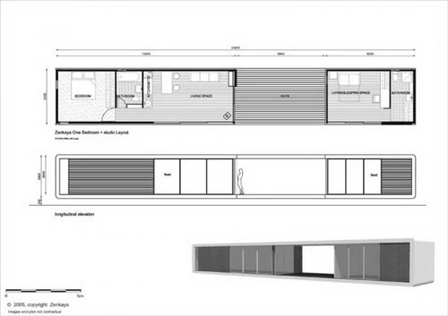
Las unidades se entregan con interiores totalmente equipados, en la parte trasera de un camión y vienen en una variedad de tipologías, incluyendo un módulo de estudio de 3.4x6m, una versión de 3.4×15.6m con un dormitorio y un modelo de 18 metros de largo de dos dormitorios.
El tamaño del modelo de las imágenes es de 3.8x12m y su precio original es de 23.616€.









