Vivienda social y natural en Baleares.
En el municipio de Inca, Islas Baleares, este proyecto de vivienda de protección pública destaca por su enfoque arquitectónico innovador y su compromiso con la comunidad. Diseñado por Joan Josep Fortuny Giró y Alventosa Morell Arquitectes, esta vivienda es un ejemplo de cómo la arquitectura puede contribuir a mejorar la calidad de vida de las personas.
El proyecto destaca por su integración con el entorno. La vivienda se adapta armónicamente a la topografía del terreno y respeta la escala y materialidad de las construcciones circundantes. El uso de formas simples y limpias crea una estética contemporánea que se fusiona con el contexto urbano. Destaca el aspecto natural y casi inacabado que ofrecen los materiales en las fachadas: contraventanas en madera natural, paños de fachada en cerámica sin revoco, cerrajería con redondos de acero corrugado.
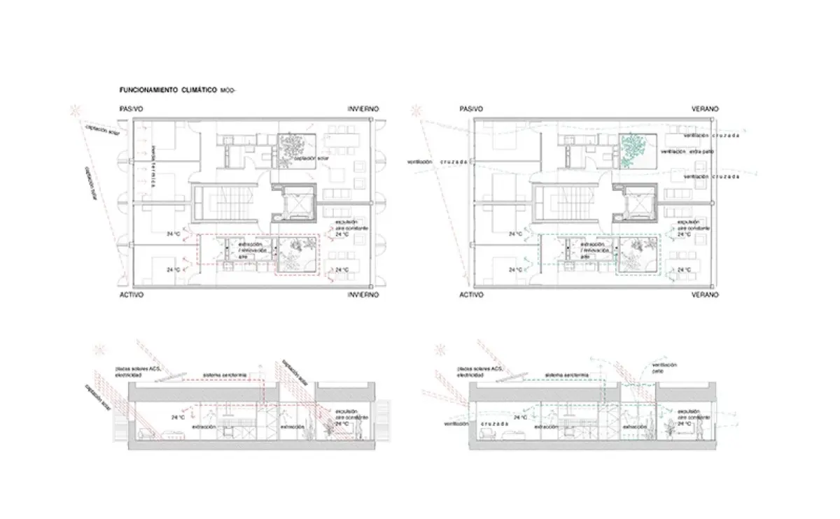
En cuanto a los espacios, el diseño se basa en la funcionalidad y el bienestar de los residentes. La distribución interior ha sido cuidadosamente planificada para optimizar el uso del espacio y garantizar la privacidad de cada vivienda. Se ha dado especial atención a la iluminación natural y la ventilación cruzada, creando ambientes luminosos y saludables. Se han incluido generosas áreas comunes y espacios de encuentro para fomentar la interacción social y fortalecer el sentido de comunidad.
Materialmente, se ha priorizado el uso de elementos sostenibles y de bajo impacto ambiental. La elección de materiales locales y reciclables ha sido fundamental para reducir la huella ecológica del proyecto. Además, se han implementado sistemas de eficiencia energética, como la instalación de paneles solares y sistemas de recolección de agua de lluvia, que contribuyen a la sostenibilidad y reducen los costos de operación.
Este proyecto de vivienda de protección pública en Inca puede ser una herramienta para el bienestar social. Al enfocarse en la integración con el entorno, la funcionalidad de los espacios y el uso de materiales sostenibles, se ha logrado crear un ambiente habitable y asequible para las familias que residen allí. Este enfoque holístico demuestra el compromiso de los arquitectos con la comunidad y su visión de una arquitectura responsable y consciente del entorno.
















