Villa Melana, una casa de campo en Grecia
El proyecto Villa Melana es obra de la colaboración de los estudios de arquitectura Valia Foufa y Panagiotis Papassotiriou. Está ubicado en Tyros, Arcadia (Grecia) y fue encargado por una familia residente en Atenas como casa de campo. Su diseño comenzó a mediados de 2012 y culminó a finales de 2014.
Todo comenzó como una simple instantánea; La parcela, con fuerte inclinación y vista clara hacia el mar, es un retiro de vacaciones que protege a sus habitantes del calor del sol y de los vientos fuertes mientras que calma los sentidos bajo la luz de la luna.
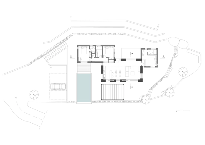
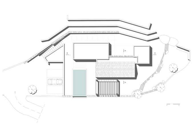
Se colocó la edificación en la única meseta natural disponible con el fin de evitar trabajos innecesarios en la parcela que podrían estropear el relieve.
Elementos simples para hacer frente a un terreno difícil y empinado. La vista al mar y la enormidad del horizonte abierto es abrumadora y por lo tanto no es necesario un gran esfuerzo para enmarcar las vistas.
La estructura se define por 3 volúmenes que se colocan a lo largo de las curvas de nivel. El producto final es el resultado de la división de un volumen rectangular en 3 partes, reforzadas y definidas por el uso de diferentes materiales y la alteración del diseño.

El volumen central (donde se alojan las actividades del día a día) está revestido, interna y externamente, con piedra local de Arcadia sobre estructura de hormigón y revestimiento de ladrillo. Tiene tejado a dos aguas y la chimenea en el extremo estrecho enmarcando la vista. El diseño tiene referencias a la arquitectura local que incorpora cambios en la forma y el tamaño de las aberturas con el fin de lograr mejores resultados en la salida bioclimática y a la vista.
Dos bloques blancos son un retroceso a cada lado del volumen principal que actúa como referencia al minimalismo y en consonancia al lenguaje arquitectónico de Valia Foufa y Panagiotis Papassotiriou, lejano de exageraciones decorativas pesadas.
En la intersección de los tres volúmenes dos vigas de hormigón actúan como «conectores» subrayando sutilmente la unión de los 3 bloques.

Finalmente, el blanco devuelve reflejado el sol y el revestimiento de piedra ofrece su masa térmica que conecta el edificio con el entorno. Juntos protegen a los habitantes de las condiciones meteorológicas. Una configuración que revela la vista infinita al horizonte y que fue llevado por consideración al fuerte relieve y a los materiales tradicionales de la zona.
Fotografías de Erieta Attali y Pygmalion Karatzas















