Villa H, un loft al aire libre junto a la costa holandesa
La Villa H, obra del estudio holandés BERG + KLEIN, es un buen ejemplo de cómo adecuar un modelo tradicional de construcción a unas necesidades específicas sin perder ni un ápice de frescura.
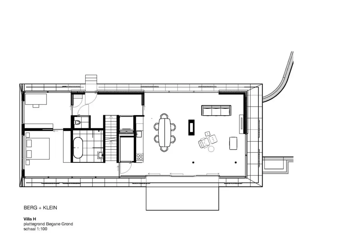
Ubicada en pleno paisaje de dunas de Hoek van Holland, cerca de Róterdam, el cliente deseaba crear un interior cálido y abierto, no muy grande, pero en el que poder disfrutar plenamente del entorno. Para ello, se combinó piedra natural, madera y hormigón en un diseño de planta abierta protagonizado por el cristal.
Como eje estructural del edificio, una escalera entre dos muros de hormigón visto enlaza el sótano con la planta principal y la azotea. A fin de que el resultado fuese perfecto en esta zona y en las paredes del piso inferior, se hizo un molde horizontal de madera in situ para construir los muros de carga de nueve metros de altura. De esta manera, las paredes se moldearon horizontalmente y luego, con ayuda de dos grúas, se colocaron en el centro de la casa.
En torno a este elemento vertebrador encontramos la entrada –con un vestíbulo clásico–, un estudio, el dormitorio y una amplia sala de estar con chimenea, que se prolonga mediante una terraza hacia el jardín. La presencia de voladizos en casi todo el perímetro le brinda una decoración efectiva, al tiempo que la articula en horizontal.
La fachada abierta al jardín carece de paredes. Su lugar lo ocupan grandes marcos de madera que alojan el acristalamiento. Con unas dimensiones de 2 metros de ancho por 3 de alto, estas piezas de cedro rojo teñido permiten tener una envidiable panorámica del bosque. En el área de la terraza, las hojas pueden abrirse, generando así un espacio diáfano de casi 7 metros: una auténtica proyección del salón, ideal para el verano.
Unos estilizados «brise-soleils» deslizantes –también de madera– tamizan el paso de luz natural a través de esos ventanales de suelo a techo. Además de proporcionar sombra a voluntad, dan privacidad a zonas como el baño abierto o el dormitorio.
Por último, detalles como la azotea con vegetación y paneles solares o su bomba de calor accionada por aire hacen más sostenible la Villa Hupkes.























