Una sauna flotante navega en silencio por los lagos de Seattle
En enero de 2014, Jon Gentry y Aimée O´Carroll, arquitectos fundadores de la firma goCstudio, estaban sufriendo uno de esos fríos y húmedos inviernos de Seattle. Entusiastas de las estructuras flotantes, del agua y, sobre todo, de ese calor seco y relajante que les era tan esquivo en su ciudad, idearon algo aparentemente descabellado: una sauna flotante.
Así nacieron los primeros bocetos de la denominada wa_sauna. La idea era en realidad muy simple: crear una sauna flotante que pudiera registrarse como una pequeña barca autopropulsada para ser compartida por la comunidad que disfruta de los lagos de Seattle.
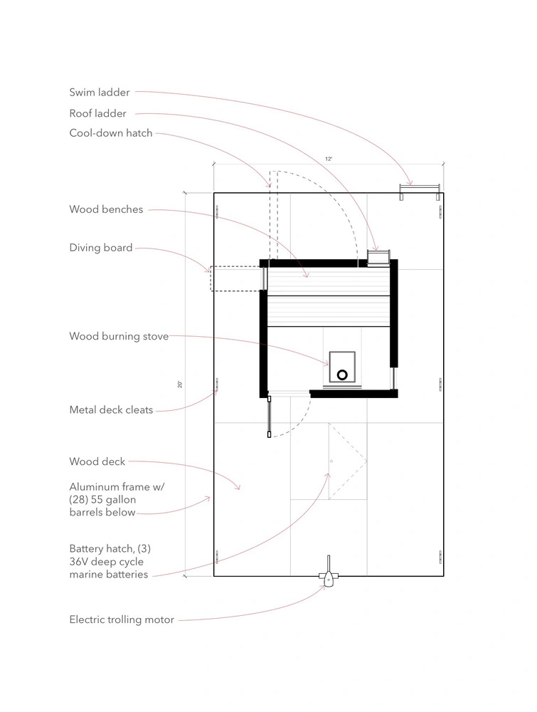
A través de una campaña de micromecenazgo y junto a un equipo de voluntarios locales, Aimée y Jon comenzaron la construcción de su sueño, curiosamente en un almacén cedido por una cervecera local, lo que da una idea del interés suscitado por el proyecto. El resultado final es una estructura de 22 m2 y una altura de 4 metros, con un peso aproximado de algo más de 2.000 kilos. La cubierta está elaborada con marcos de aluminio prefabricados, así como madera contrachapada resistente al agua y protegida con barniz.
Este entramado metálico está pensado para que los propietarios de barcas o kayaks que suelen navegar por los lagos de Seattle puedan amarrar allí sus embarcaciones y hacer uso de la sauna. Y la flotabilidad está asegurada por medio de 28 bidones de plástico de 208 litros, que permanecen ocultos bajo la estructura.
La sauna en sí contiene dos grandes bancos de madera para relajarse y el calor es proporcionado por una estufa de leña. El propio contraste entre las tablas claras y los paneles externos veteados en oscuro resulta precioso en su sencillez.
El conjunto se completa con ventanas, una portezuela lateral para refrescar la estancia, una escalera para subir a cubierta desde el lago y otra más alta para acceder al tejado y poder zambullirse en el agua desde el trampolín.
Los artífices del proyecto pensaron que sería una pena perturbar la calma de la wa_sauna con el ruido de un motor de gasolina, así que emplearon un motor de arrastre eléctrico de 36 voltios para la propulsión.
El nombre de este refugio casi a la deriva homenajea al estado de Washington que lo vio nacer para el disfrute de toda su comunidad. De hecho, el proyecto ha ganado en 2016 uno de los premios del American Institute of Architects, que valoró el hecho de que la wa_sauna capturase el espíritu y el gran impacto que pueden derivarse de los más pequeños proyectos.
Fotografía Kevin Scott








