Nadar en Flandes
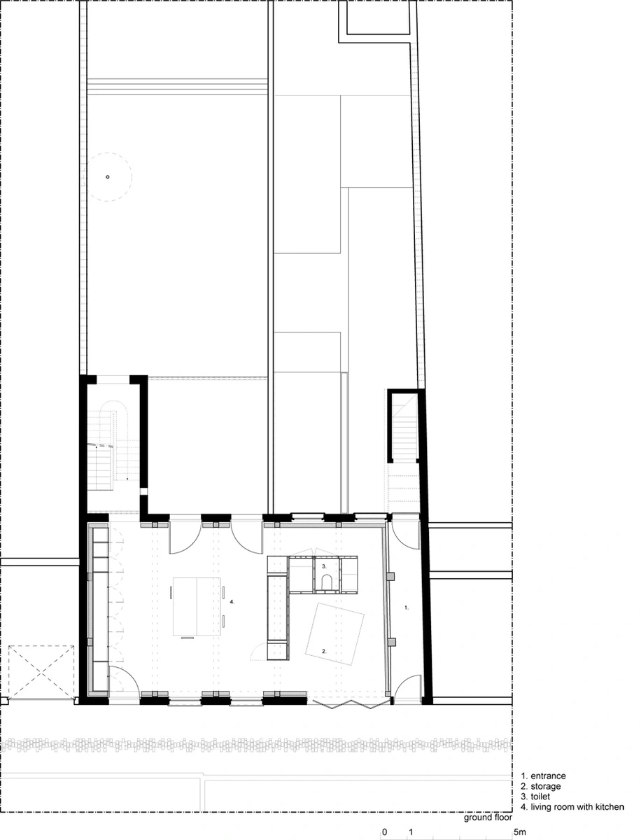
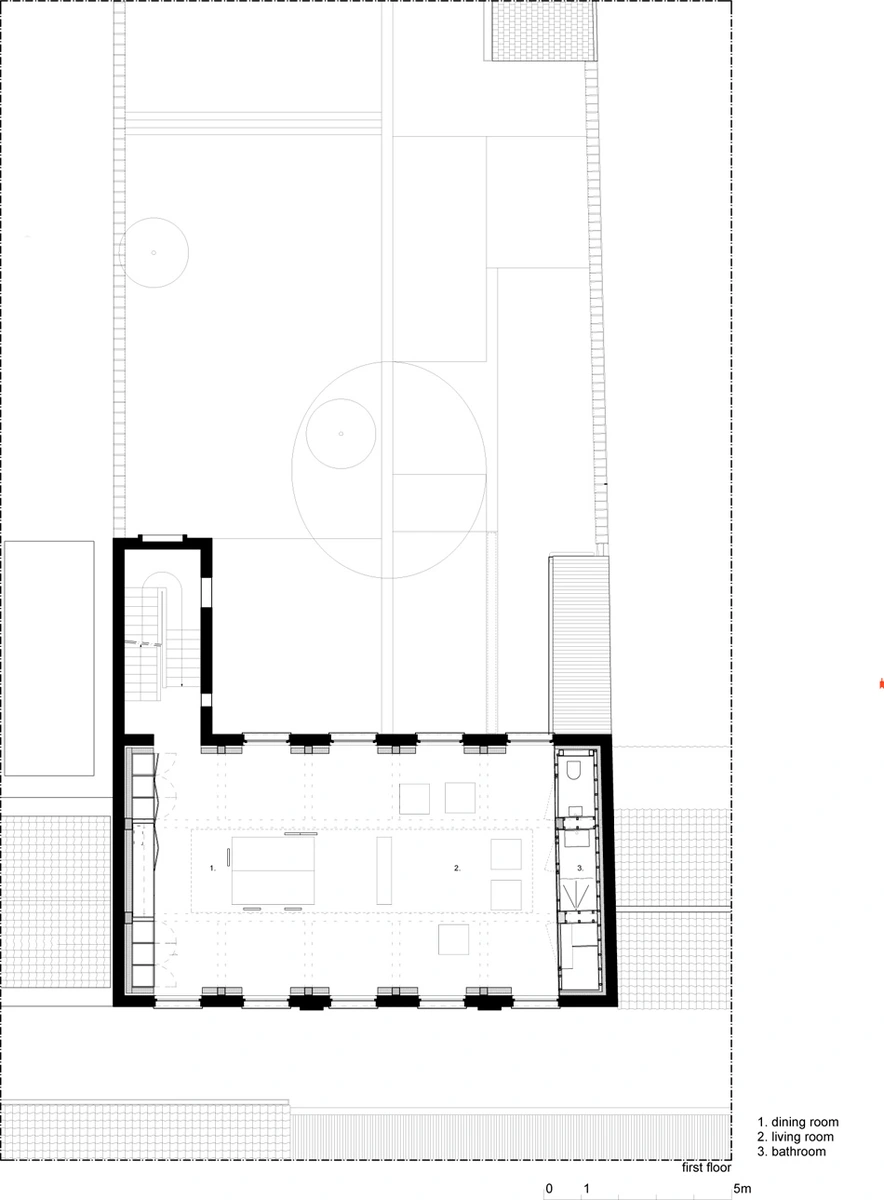
Proyecto de dmvA. Durante la rehabilitación de un club para hombres del S. XVII en la zona flamenca de Bélgica, la propiedad colindante -un colegio abandonado-, se puso a la venta y fue rápidamente adquirida. Como el edificio lindaba con el jardín del cliente, la idea de una piscina panorámica se convirtió en la solución óptima para la azotea del colegio. El diseño requería un sistema de pilares y vigas que conformaron el esqueleto, insertándolo en la estructura de ladrillo para que soportara el vaso blanco inmaculado de la piscina. El sistema de la piscina abrió, además, el espacio sobrante que se convirtió en una zona de relax, con una cocina abierta en la planta baja y una zona de uso mixta en el primer nivel.
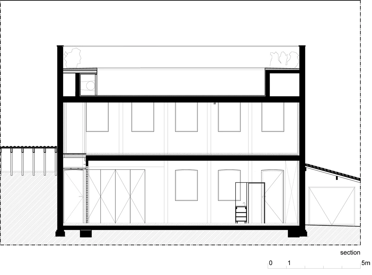
El hormigón proporciona el refuerzo necesario para el colegio abandonado y la nueva piscina.
Vista de la Abadía desde la zona de comedor.
Inserciones estructurales nuevas se encuentran con trabajos antiguos en ladrillo
El uso de pilares, columnas y hormigón abrió el resto del edificio a nuevos usos.
Fotografías: © frederik vercruysse












