Una nueva piel: la rehabilitación del Convento Saint-François
A 450 metros de altura, sobre el pequeño pueblo de Sainte Lucie de Tallano, Amelia Tavella Architects ha llevado a cabo la rehabilitación del Convento Saint-François. Un convento abandonado y parcialmente en ruinas al que han dotado de una nueva piel y un nuevo futuro al convertirlo en una Maison du Territoire dedicado a la cultura.



UNA REHABILITACIÓN CON CONCIENCIA
Finalista en los Premios Mies Van der Rohe 2024, el estudio de arquitectura buscó rehabilitar el monumento histórico preservando y respetando el pasado del edificio interconectando dos partes: una primera compuesta por las ruinas rehabilitadas y un segundo volumen de cobre perforado que adquirirá una pátina cálida con el tiempo.



La intención de Amelia Tavella Architects fue fusionar el cobre y la piedra, convirtiendo ambos materiales en una extensión del otro. La estructura de cobre reinterpreta la estructura original del convento, capturando y reflejando la luz a través de las perforaciones, una referencia al mashrabiya árabe.



RESPETO POR NUESTRA HISTORIA
Decisiones como la elección del material, un material noble, y su fusión progresiva con el entorno natural demuestran un claro entendimiento y respeto por el contexto del edificio. La naturaleza también ha ganado terreno con el tiempo, apoderándose de partes del interior y el exterior del edificio. Este fue un aspecto que el estudio tuvo en consideración como parte intrínseca de la arquitectura y que respetaron como una «armadura vegetal que lo protege del colapso».


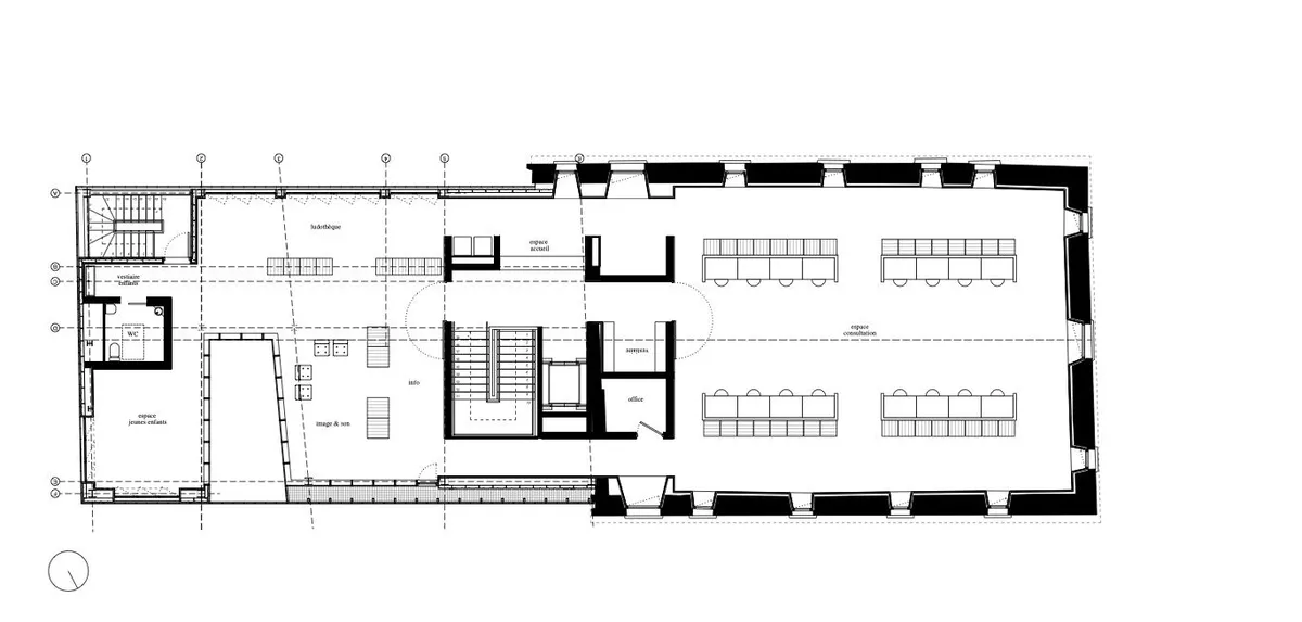
En su interior, el convento aloja una mediateca, espacio para eventos culturales y zonas infantiles.






La rehabilitación del Convento Saint-François sugiere una conversación entre el pasado y el presente, una clara dicotomía que declara un avance y encuentra hueco para honrar las raíces. Una forma de arquitectura que no busca revolucionar, sino evolucionar sin olvidar aquello que fue antes.









Descubre también la Casa do Medio, una transformación escondida.