Una habitación sobre el mar
Proyecto de los arquitectos Studio Zero85 en Pescara (Italia)
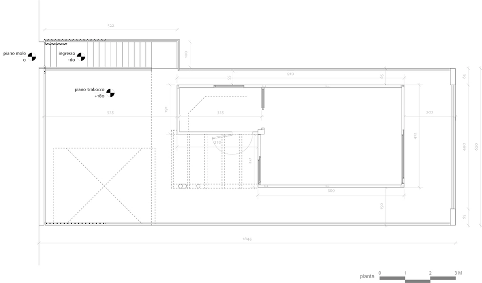
El «trabocco» es un arte de pesca antiguo, típico de la costa adriática. Realizado en madera, consta de una plataforma sobre el mar, anclada a la roca por gruesos troncos de pino de Aleppo; horizontalmente, está fijado por palos largos o antenas que sostienen una gran red de pesca, que sobresale de la plataforma. A través del tiempo, estas ligeras edificaciones han ido perdiendo el sentido para el que fueron construidas y se han ido convirtiendo, gradualmente, en auténticos espacios sobre el mar. Este proyecto de rehabilitación del «trabocco» recuerda la tradición histórica con un nuevo uso e imágen.
El proyecto sigue la máxima de extrema simplicidad con líneas continuas que dibujan la estructura. En el interior, la madera es de alerce, la misma que utilizaban los antiguos pescadores. La parte superior alberga una cocina, un pequeño comedor/sala de estar y un dormitorio. En el piso inferior, se encuentra el baño y una despensa.
Fotografías de © Sergio Camplone



