Una casa rural elástica y versátil junto a la sierra de Tarragona
La tranquila localidad de Botarell, a los pies de la sierra de Prades, posee una larga tradición agrícola en la que destacan los campos de olivos y avellanos. Es en este entorno rural donde decidieron construir su casa Pau y Rocío, una pareja de treintañeros enamorada del paisaje del Baix Camp.
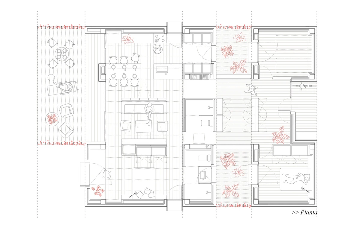
Bajo la dirección del estudio tarraconense NUA Arquitectures y con la premisa de unos recursos económicos limitados, se diseñó un programa de una sola planta que pudiera expandirse en años posteriores.
Este sistema elástico sigue la estructura geométrica de las parcelas de cultivo de su entorno. Así, el interior se organiza en bandas paralelas que regulan la intimidad, de forma que se cierra en los laterales y se abre por completo hacia el sur. De este modo, se garantiza un aporte abundante de luz natural, minimizando las pérdidas térmicas y protegiendo la vivienda de las fuertes rachas de viento, que llegan en ocasiones a los 100 km/h.
Con un horizonte de campo abierto en esa cara sur, será por allí por donde se expanda conforme vaya aumentando la familia. Pero hasta que llegue el momento, el futuro módulo de ampliación sirve de terraza donde disfrutar del buen tiempo y como acceso al huerto plantado en el patio trasero.
Los materiales utilizados en la Casa para Pau y Rocío (acero, hormigón, madera y cerámica) son sencillos, al igual que las técnicas constructivas, que priman el aprovechamiento de energías y recursos naturales. Además de sacar partido a la orientación más favorable, se procuró conseguir un flujo de ventilación óptimo mediante puertas y ventanas alineadas. Así mismo, el agua de lluvia se emplea para regar el huerto familiar.
La simplicidad también queda patente en los muros que delimitan la propiedad. Una humilde capa de ladrillos cumple su cometido como única separación, a la vez que sus huecos expuestos proporcionan una aireación eficaz del interior. Algo muy de agradecer en un clima de secano tan caluroso y poco húmedo como el de la región.
Por último, el color terroso que reviste el hormigón exterior se funde con los campos de cultivo y refleja la intensa luminosidad del paisaje mediterráneo.














