Una casa de montaña que rompe moldes en Rodersdorf
El estudio Berrel Berrel Kräutler Architekten, con sede en Zúrich, concluyó el año pasado una vivienda unifamiliar muy sugerente en la localidad suiza de Rodersdorf, casi en la frontera con Francia.
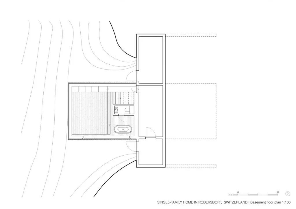
Con vistas a las montañas alsacianas, el proyecto debía lidiar con la marcada pendiente de la ladera donde se asentaría. La solución de los arquitectos fue plantear una casa decididamente asimétrica, tanto en la forma como en los materiales empleados.
Así, tanto el techo como la fachada más estrecha se revistieron de una aleación de cobre, titanio y zinc, mientras que la más larga está provista de tableros de madera espaciados. Su planteamiento minimalista encaja con el perfil de las casas de montaña tradicionales de la zona, aunque la peculiar fisonomía de la vivienda la hace destacar con autoridad.

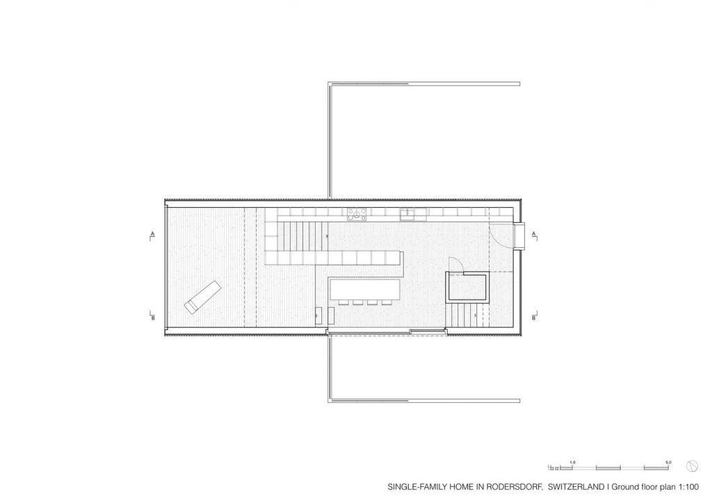
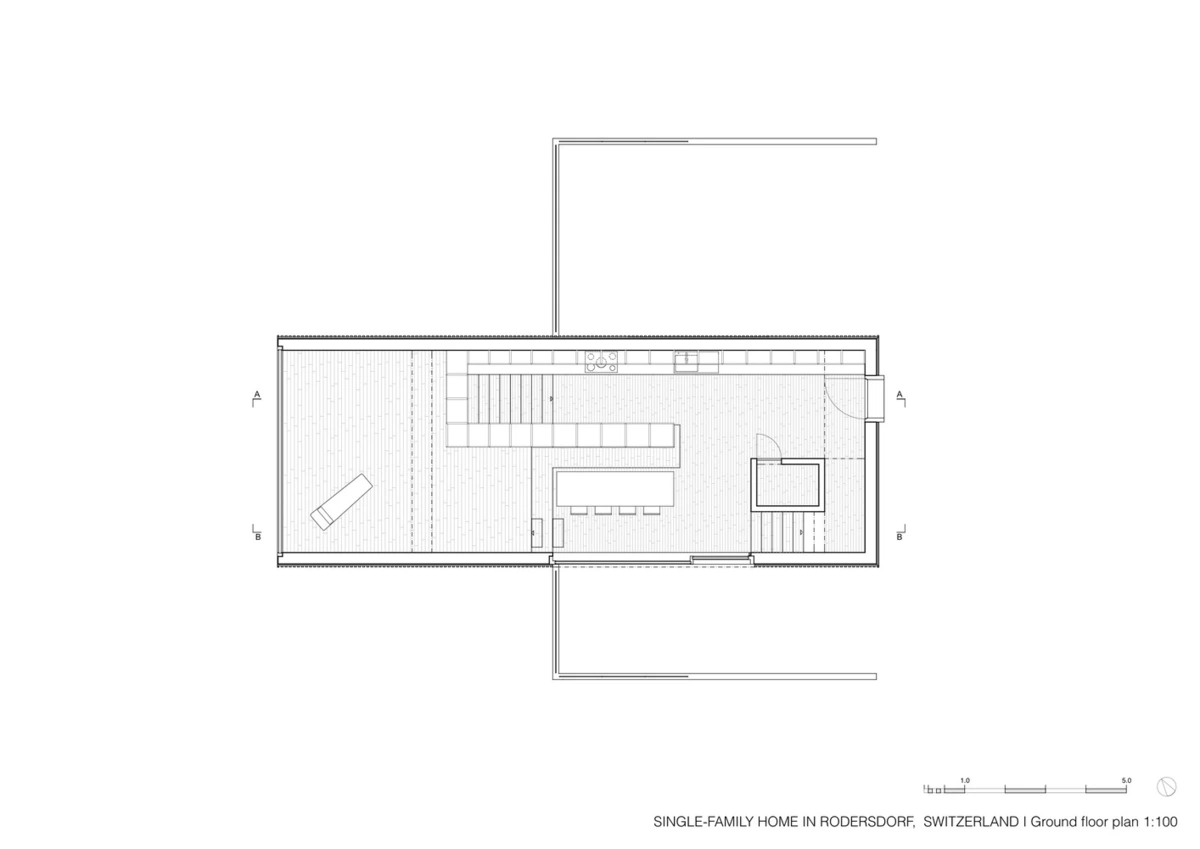
Además, la propuesta interior no tiene nada de típica, ya que posee un sólido armazón de madera bajo el techo que articula el espacio y lo divide en cuatro niveles independientes. Otra instalación de madera en el centro de la casa separa y vincula a la vez las diferentes habitaciones de los dos primeros pisos: entrada, comedor, sala de estar, cocina, vestidor y una zona de descanso. Por su parte, los armarios empotrados separan el cuarto de baño, el dormitorio y la zona de estudio.
La zona central está conectada al exterior a través de una enorme ventana de suelo a techo con vistas a las colinas. Esta gran abertura visual, así como una claraboya y diversas áreas acristaladas a lo largo de la fachada, contribuye a lograr una estupenda iluminación natural en todas las estancias.

El acceso a los distintos niveles se efectúa mediante una escalera formada por peldaños de madera maciza integrados elegantemente en la pared. Hay que destacar la precisión del trabajo de carpintería, con esos acabados perfectos que consiguen dar una calidez envolvente a los volúmenes interiores; una segunda piel con ecos clarísimos del diseño escandinavo.
El planteamiento diáfano y abierto de la distribución interna se prolonga en la ausencia de puertas salvo en los baños, donde estas quedan integradas en los muros de madera. Así mismo, las paredes y techos en blanco multiplican la luminosidad de la vivienda, contribuyendo a agrandar los espacios.
Así pues, los acabados lisos y esa organización singular son las señas de identidad de esta casa de montaña. Un diseño que la ha hecho merecedora de una mención en el certamen Best Architects 17, que selecciona los mejores proyectos realizados por estudios de arquitectura de países de habla alemana.
Fotografías Eik Frenzel


















