Una casa de cuento en un hotel
Un volumen cerrado construido en madera oculta el dormitorio, el baño y la sauna dentro de esta habitación de hotel de Berlín, recientemente reformada por el arquitecto danés Sigurd Larsen, especializado en arquitectura singular y diseño de mobiliario.
The Garden Room (habitación-jardín) es una de las cien suites de diseño único dentro del hotel Michelberger. Cada una de estas habitaciones se divide en seis categorías: acogedor, loft, lujoso, escondite, grupo y gran tamaño.
La habitación de Larsen cae dentro de la categoría «Escondite»; en consecuencia, el diseño buscaba generar un espacio habitable que el huésped pudiera explorar y personalizar.
En síntesis, la habitación de hotel (una caja) esconde otra caja (el escondite) con forma de casa rodeada de un espacio vacío. «Queríamos crear una nueva categoría de habitaciones que mantuvieran la atmósfera y el espíritu del hotel único pero que introdujeran una estética nueva y más pura…”
Con la premisa de experimentar la idea del hogar temporal, se trataba de idear un lugar que hubiera que explorar a la llegada y que permitiera la personalización en la manera de usarse.
El arquitecto planteó un volumen de madera en forma de casa y un espacio circundante a modo de jardín, transformando así la habitación convencional en un espacio interior y otro “exterior”.
El volumen cerrado se percibe rotundo, blanco y tranquilo desde el exterior, y la luz natural fluye por el espacio circundante, el “jardín”, también en blanco. Las numerosas aperturas, a modo de puertas y ventanas, abren el volumen revelando un cálido y acogedor interior en madera y permiten usar el espacio de múltiples maneras.
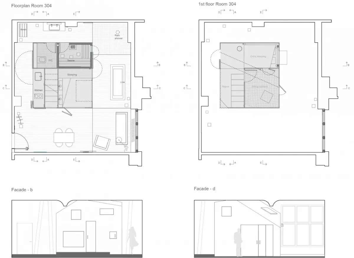
La casa de madera, con aire de casa de cuento o casa de juego de niños, contiene en planta baja un dormitorio, una sauna, aseo y cocina. Una escalera conduce a un segundo dormitorio y una gran hamaca con vista al resto de la habitación.
En el «jardín» hay una ducha de lluvia y una bañera de paso, junto con una mesa de comedor y una sala de estar en una terraza.
Se nos ocurren mil maneras para jugar en una habitación así.











