Un oasis para artistas en la costa sur mexicana
Imaginemos un centro artístico en una playa del Pacífico donde creadores de todo el mundo se reúnen para trabajar e intercambiar ideas en un entorno paradisíaco, colaborando a su vez con las comunidades locales. Suena bien, ¿verdad? Pues esa visión ya es toda una realidad en México bajo el nombre de Casa Wabi.
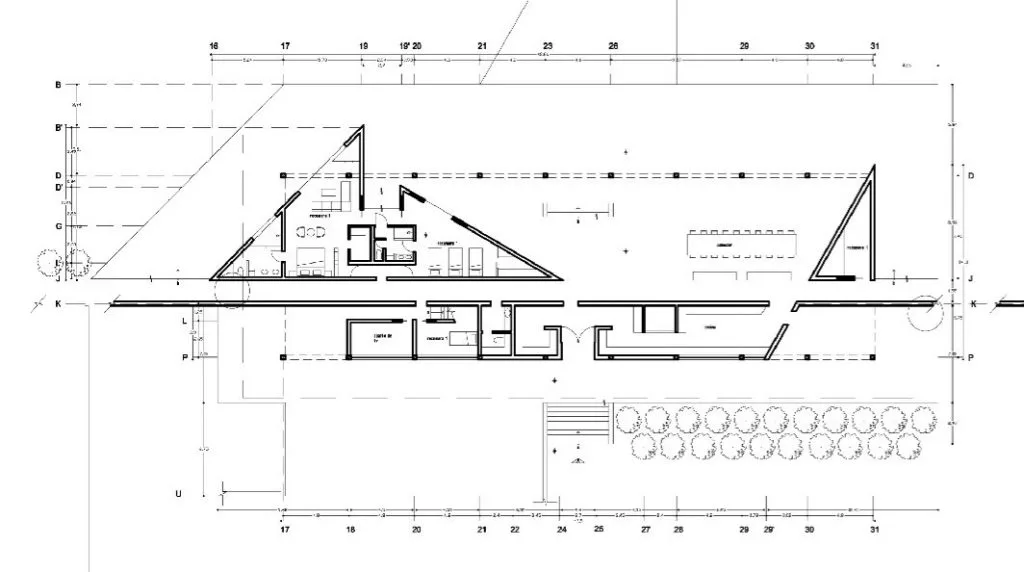
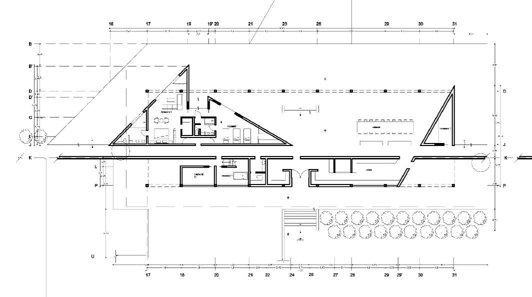
Diseñada por el premio Pritzker japonés Tadao Ando y construida en colaboración con el estudio local BAAQ del arquitecto Alfonso Quiñones, ocupa 550 metros de costa y está ubicada a 30 minutos de la localidad de Puerto Escondido, en el estado de Oaxaca.
En realidad, Casa Wabi es una fundación creada por el artista mexicano Bosco Sodi con el objetivo de promover residencias de entre 15 días y 3 meses. El programa es muy amplio y está dirigido a creadores tanto consolidados como emergentes, así como a compañías o colectivos de cualquier disciplina artística y nacionalidad.

Consta de seis estudios-dormitorios, varios espacios de usos múltiples, un área para exposiciones, una sala de cine y un jardín botánico -proyectado por el arquitecto Alberto Kalach- que recoge la flora endémica del lugar. Una estructura de más de 27 hectáreas que se vertebra a partir de un muro de hormigón de 312 metros de longitud y 3,6 de altura. Esta gran línea separa las zonas públicas del lado norte y el área privada del lado sur.


La pared también sirve de vía principal de circulación por cada uno de los sectores de la construcción, haciendo las funciones de doble barrera interior y exterior. En cuanto a la disposición vertical, podemos distinguir dos ecos superpuestos. En la parte superior, el sabor tradicional, que recoge el espíritu de las palapas de la región mediante un tejado en madera local de parota y recubierto de hojas de palma secas. Este tipo de cerramiento resiste bien el calor oaxaqueño y favorece la ventilación natural.

A su vez, en la parte inferior del recinto, el carácter contemporáneo se articula con suelos de marmolina, muros geométricos en hormigón visto y la ausencia total de paneles de vidrio. Son abundantes también los espacios para el ocio, como las zonas de tumbonas y sus dos piscinas muy cerca del mar.
El nombre de la casa deriva del concepto estético nipón del wabi-sabi, que pone en valor el constante fluir de las cosas, la belleza de la imperfección o la fugacidad, y donde la naturaleza toma un protagonismo especial.
Haciendo gala de este cambio continuo, ya está proyectada una ampliación de la Casa Wabi, diseñada por otro premio Pritzker, el portugués Álvaro Siza. En su futuro Pabellón de Barro se impartirán talleres de cerámica para niños y jóvenes.






























