Un espacio emocionante para la creatividad infantil de la mano de Paredes Pedrosa
La Universidad Popular Infantil (UPI) se construyó en 2011 como un centro educativo experimental en la ciudad de Gandía. La idea era acoger en un mismo espacio dentro del Parque Ausiàs March a niños de 1 a 12 años para fomentar su creatividad fuera del ámbito escolar. Para ello se necesitaba un edificio especial que estimulara las capacidades de cada uno de ellos en un entorno lúdico.
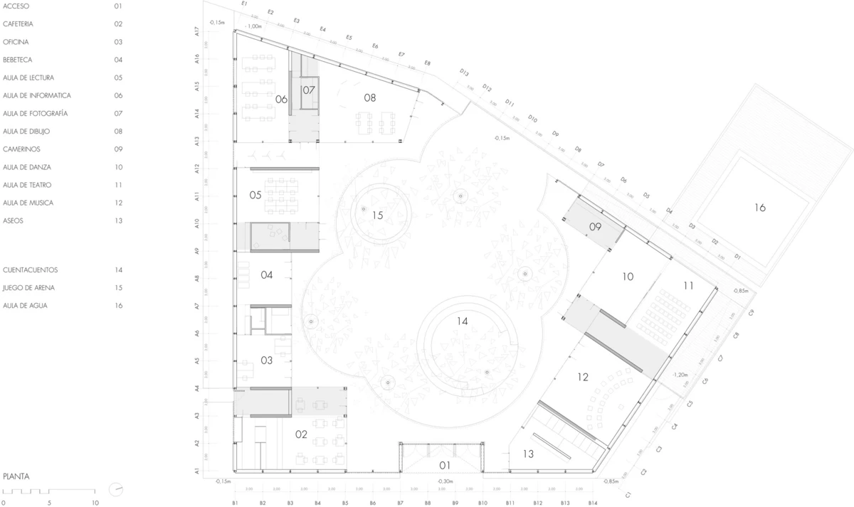
El proyecto se adjudicó al estudio madrileño Paredes Pedrosa Arquitectos, que apostó por una construcción trapezoidal de una sola planta para englobar las seis grandes moreras ya existentes. Este diseño crea así un gran patio central de convivencia en forma de nube que incluye un arenero y una grada para cuentacuentos al aire libre. El propio arbolado genera las zonas de sombra y tamiza la luz natural que inunda las aulas acristaladas.
Cada espacio interior se dedica a una actividad: pintura, fotografía, lectura, informática, música, danza… Las instalaciones se completan con una sala para bebés, un teatro cubierto, una cafetería y unas vistas excelentes al río Serpis. Además, se transformó un antiguo estanque anexo al edificio en una piscina para el verano.
Considerando la inagotable vitalidad de sus principales usuarios, los suelos del centro se revistieron de linóleo y los techos se cubrieron con paneles de corcho para absorber el sonido.
En cuanto a las fachadas exteriores y el tejado, se eligió un revestimiento de cerámica blanca, elemento tradicional de esta área mediterránea. Resulta muy práctico porque no requiere mantenimiento y se adapta muy bien al clima templado, reflejando el calor en verano. A su vez, la cubierta se inclinó ligeramente desde el centro para evitar que el agua de lluvia caiga hacia el patio lobulado.
La forma escogida para la cerámica del perímetro crea una envolvente ondulada muy atractiva que recuerda a una valla de bambú. La blancura de este espacio tiene su continuidad en el patio, donde la carpintería se pintó del mismo color. Este nexo visual, unido a la transparencia de las grandes cristaleras, contribuye a la integración del edificio en el parque, ya que las moreras se pueden ver desde todas las aulas.












