Twaalfkameren, una solución transgresora llena de luz
¿Es posible multiplicar el espacio y sacar partido a una parcela realmente estrecha? La Casa 12k (Twaalfkameren, o doce habitaciones) del estudio belga Dierendonck Blancke Architecten responde a esta pregunta con un sí rotundo, y además con un presupuesto muy ajustado.
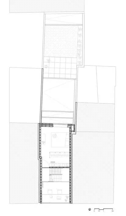
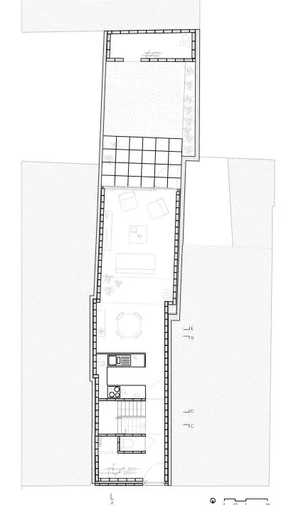
Ubicada en el centro histórico de la ciudad de Gante, el terreno de partida parecía tener todo en su contra. Encajado entre casas de tres y dos alturas, resultaba casi imposible diseñar una solución que iluminase toda la vivienda con luz natural. Sin embargo, un hábil juego de lucernarios y distintas alturas aportaron la clave para soslayar el problema.
El programa de construcción incluye una secuencia de tres partes diferenciadas. Las dos primeras se conectan a través de una escalera central, que divide las áreas de descanso y trabajo. Un gran tragaluz en el techo, junto a los aportes de los acristalamientos interiores y exteriores, garantiza una buena iluminación en toda la zona.
Al final del breve pasillo de entrada, una puerta da acceso a la cocina. Aquí pasamos a un techo alto, con una panorámica acristalada de la calle y la entreplanta. Un área diáfana que se prolonga hacia el salón abuhardillado, donde un nuevo lucernario de pared a pared asegura un ambiente confortable.
El cliente deseaba que el unifamiliar contase con un pequeño jardín, así que el estudio belga añadió un patio interior como prolongación natural de la sala de estar en los días soleados.
En cuanto a la fachada, se optó por un enfoque rupturista. En lugar del ladrillo tradicional de muchas casas del barrio, todas las estructuras se sustentaron sobre bloques de hormigón, que generan tanto las paredes internas como los muros exteriores. Su distintivo tono gris solo se revistió de blanco en las divisiones longitudinales. El contraste cromático con las vigas de madera y el hormigón en bruto ayuda a proporcionar mayor amplitud visual a todas las plantas.
Como dato curioso, el cliente –aconsejado por los arquitectos– compró también una de las casas contiguas. Aunque el lote de dos viviendas superaba su presupuesto, antes de venderla le sirvió de hogar temporal durante la construcción de la Twaalfkameren.


















