Tower House: una fantasía lúdica unifamiliar de Austin Maynard Architects
Los australianos Austin Maynard Architects destacan por sus soluciones constructivas atípicas, lo que ellos llaman «arquitectura del entusiasmo». Así que no es de extrañar que cuando un matrimonio con gemelos de ocho años –aficionados al arte, la naturaleza y las actividades al aire libre– les planteara la reforma de su vivienda familiar, respondieran con un imaginativo «diseñémosles un pueblo».
Ese fue el origen de Tower House, ubicada en Alphington, un barrio de la periferia de Melbourne. La parcela se encuentra cerca de un parque y del río Yarra, estando delimitada por un frondoso camino rural y una calle tranquila con pocas construcciones. Así pues, parecía que lo ideal no iba a ser una gran mole contemporánea.
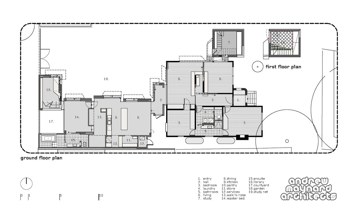
La propuesta consistió en crear una serie de pequeñas estructuras con tejado a dos aguas, de forma que ninguna de ellas dominara sobre las demás en tamaño o textura. Su apariencia exterior de aldea esconde en realidad un hogar asombroso, ya que todos los armazones están conectados. De hecho, aunque da la impresión de ser reducido desde fuera, los espacios internos son muy amplios.
Se empezó con la restauración del edificio original, que incluye ahora los dormitorios de los niños, un baño y varias zonas comunes. El ala nueva está ocupada por la cocina-comedor, otro baño, el dormitorio principal y un estudio. El concepto de una sola planta, tan común en Australia, solo se rompe en el estudio de los gemelos. Aquí, una estantería de suelo a techo resalta la verticalidad de un área lúdica y acogedora. Los escritorios de los chicos ocupan la parte baja, mientras que una red cuelga en lo alto para que puedan leer al tiempo que disfrutan de la panorámica de la calle y el patio trasero.
Además, papá y mamá también cuentan con sus propios refugios. Ella dispone de un lugar para la meditación, ligeramente hundido, con el escritorio casi al mismo nivel que el suelo del jardín. Él tiene su escondite en un altillo sobre la cocina, justo en medio de la casa. Si a esto añadimos el amplio patio delantero, abierto a amigos y vecinos, no cabe duda de que la Tower House es un sitio fantástico donde disfrutar de la vida.




















