Thong House, una belleza contemporánea con sabor tropical
La inspiradora Thong House, con sus 325 m2, destaca en el barrio de Phu My Hung, una nueva zona residencial en pleno desarrollo del sur de Ho Chi Minh City (la antigua Saigón).

Cuando el estudio vietnamita Nishizawa Architects se planteó este proyecto de casa adosada decidió reinterpretar la distribución de la vivienda típica del país. Sus clientes, una joven pareja con dos niños, deseaban tener un hogar con abundantes elementos naturales donde cada miembro de la familia tuviese su propio espacio, pero con diversas áreas comunes en las que interactuar.

A la vista de este planteamiento, el arquitecto japonés Shunri Nishizawa optó por vertebrar la vivienda en torno a una escalera central -desde la planta baja hasta el jardín del último piso- que diese acceso a una serie ajedrezada de grandes volúmenes cerrados y espacios abiertos o huecos.

Así nació esta estructura de cubos alternantes con dos materiales básicos: la madera y el hormigón visto, que podemos disfrutar tanto en la fachada como en los interiores.
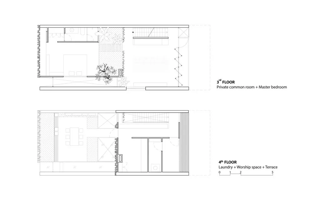
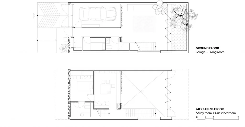
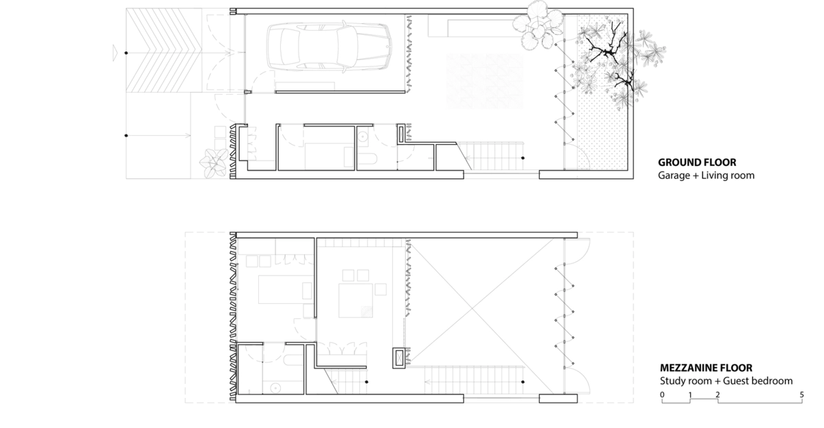
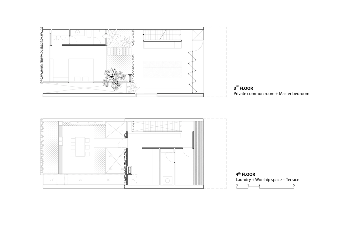
La planta baja contiene una sala de estar, un estudio y un dormitorio de invitados, mientras que en el primer piso -ideal para reuniones familiares- se sitúan el comedor y la cocina. Aquí la sensación de amplitud e integración en el entorno es total, gracias a su altura de 5 metros y a unas enormes ventanas rotatorias de suelo a techo.
Son precisamente los grandes ventanales repartidos por toda la vivienda los que constituyen la tercera seña de identidad de la Thong House, aportando luminosidad y unas vistas increíbles tanto a la calle como al exuberante jardín tropical del patio trasero.

Los dormitorios de la familia se distribuyen por el segundo piso, donde unos paneles exteriores de madera pueden girarse a voluntad para regular la luz y la privacidad. Estos artísticos paneles están tallados con motivos de hojas que tienen su réplica en los suelos de hormigón de la planta baja, lo que origina una atractiva repetición del patrón vegetal por toda la casa con ayuda del sol.

Por último, el cuarto nivel contiene una zona de lavandería y una amplia terraza con jardín, ideal para las cálidas noches tropicales.
Con un mobiliario y una decoración minimalistas, esta residencia asiática constituye una alternativa contemporánea a la forma de vida tradicional de las familias vietnamitas, en la que priman unos grandes espacios abiertos, sin paredes, que facilitan las relaciones y un contacto estrecho y estimulante con la naturaleza.
Fotografias Hiroyuki Oki

















