The Courtowers, cuatro miradores privilegiados sobre la costa libanesa
La firma de arquitectura Hashim Sarkis Studios concluyó el pasado año un proyecto muy interesante en la costa de Aamchit (Líbano) que incluía la construcción de cuatro viviendas unifamiliares y la rehabilitación del paisaje existente.
En esta ocasión, la ubicación y la climatología condicionaron buena parte de las decisiones. Las parcelas estaban situadas en una suave pendiente muy cercana a la playa, por lo que se aprovechó esta inclinación para integrar las casas en el paisaje. Así, la fachada se orientó hacia la panorámica del Mediterráneo para disfrutar de las vistas y la brisa del mar, mientras que los costados y la parte trasera quedaron protegidos por la tierra en un sistema de doble muro.
Esta pared duplicada logra un perfecto aislamiento, al tiempo que genera un pasillo perimetral que atrae el aire fresco al interior. También funciona como acceso a buena parte de las estancias de la planta baja, dejándola totalmente diáfana. La presencia de un patio en la zona posterior aumenta la ventilación cruzada, siendo especialmente útil en los sofocantes días de verano.
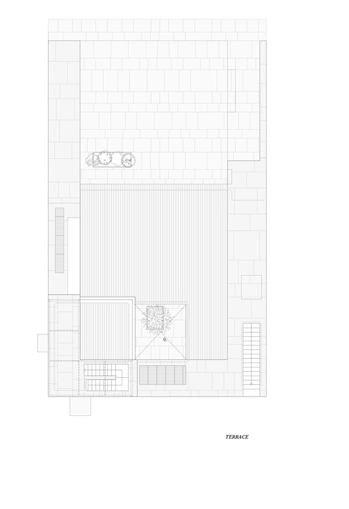
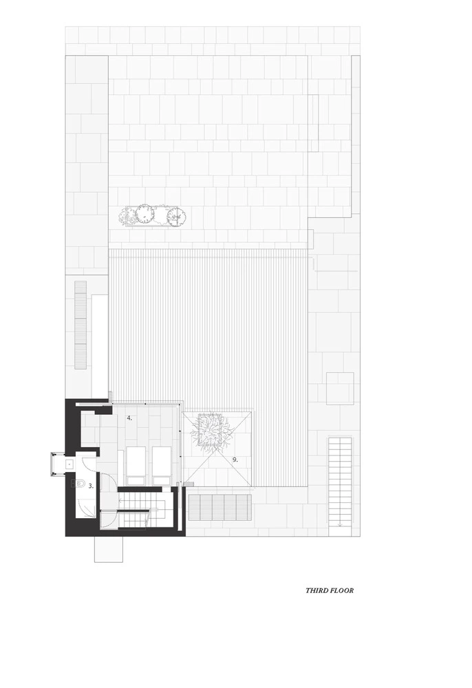
Otro de los aspectos más llamativos de este proyecto es la disposición de los dormitorios en forma de torre, que culmina en una terraza. Al estar en el lado sureste del patio de entrada, asegura muchas horas de sombra. Además, libera el calor de los dormitorios y el patio a modo de chimenea. Por otra parte, los baños y la escalera en el lado sur y este actúan como frontera térmica, evitando un sobrecalentamiento de las áreas de descanso en verano.
Una vez protegida esta zona, la esquina noroeste de la torre se dejó libre de paredes, cerrándose por medio de ventanales de suelo a techo. Deslizando estos y plegando por completo las contraventanas de madera, los dormitorios se transforman en espectaculares balcones al mar.

En cuanto al paisajismo, se buscó crear una transición suave entre la playa y la colina con ayuda de especies que no necesitan riegos frecuentes. Parte del terreno se cubrió con diversos caminos de acceso, plantando en las zonas libres olivos, palmeras, arbustos y otras plantas de la región.
Fotografia Hashim Sarkis Studios




























