Solid Cedar House, el homenaje de Shigeru Ban a uno de sus maestros
Hay iconos de la arquitectura del siglo XX que siguen dejando su huella en las construcciones contemporáneas. Uno de ellos es el alemán Mies van der Rohe, que con su ya clásico «menos es más» ha influido en innumerables creadores, tanto en Europa como en el resto del mundo.

Por ejemplo, el arquitecto japonés Shigeru Ban -un enamorado de su obra y Premio Pritzker 2014-, ha concebido una serie de proyectos a lo largo de los últimos años (museos, casas e incluso guarderías) que homenajean claramente al maestro.

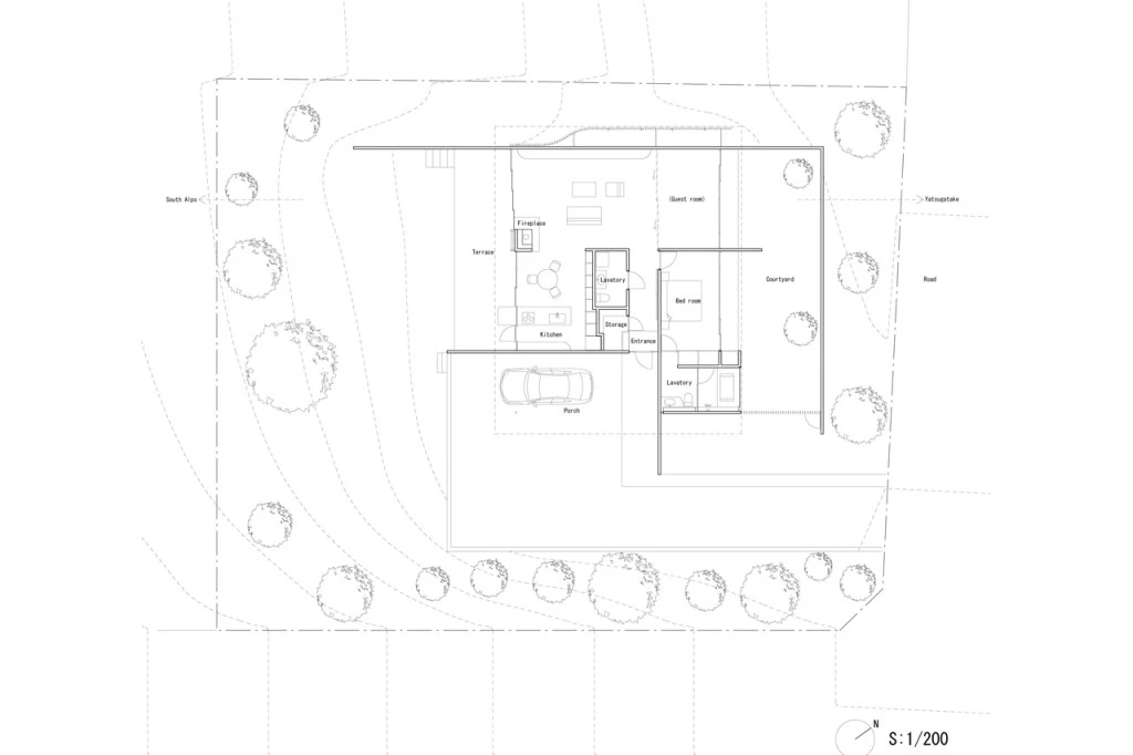
Como botón de muestra traemos hoy su reciente Solid Cedar House, una vivienda familiar de una sola planta situada en Hokuto, una ciudad de la prefectura de Yamanashi, en la isla de Honshu. La casa está construida con madera maciza de cedro procedente de bosques locales, que crea espacios diáfanos en vertical y horizontal.

El ladrillo y el hormigón de los diseños de van der Rohe se sustituyen aquí por un material más cálido que conforma suelos, paredes y techos, así como las conexiones orgánicas con el jardín exterior. Son grandes volúmenes que van más allá del espacio interior, prolongándose en auténticos muros y planos monumentales en voladizo para favorecer la privacidad de las estancias y ocultar la carretera o las casas vecinas.

Buena parte de los espacios comunes (baño, aseo, un trastero y el dormitorio, que da a un acogedor patio interior) se agrupan en el centro de la construcción, donde los tablones de cedro garantizan el aislamiento. Y en torno a ellos se abre el gran lugar para la vida familiar: una cocina abierta y la sala de estar, ambas presididas por la esbelta chimenea central que se prolonga ostensiblemente hacia el cielo como un estandarte austero pero elegante.

La amplia salida al jardín, precedida por una terraza, se puede aislar por completo con ayuda de un cerramiento acristalado con guías. Este eficaz sistema de pared plegable también se ha utilizado en el extremo opuesto de la vivienda para dar privacidad a la habitación de invitados cuando sea necesario, de forma que si ésta no se halla en uso, constituye una prolongación abierta de la zona común.

Tanto el arbolado como los porches o las diferentes texturas del cedro generan una armonía interior que se disfruta desde cualquier ángulo de esta magnífica casa.


Fotografías y planos Shigeru Ban Architects