Skinny House, una propuesta zen frente a la falta de espacio
Cuando un arquitecto cuenta con un solar de tan solo 4,2 metros de anchura, ha de pensar forzosamente en soluciones imaginativas. Es el caso de la Skinny House, obra del estudio australiano Oliver du Puy Architects, que ocupa el antiguo patio trasero de una tienda victoriana en Melbourne.
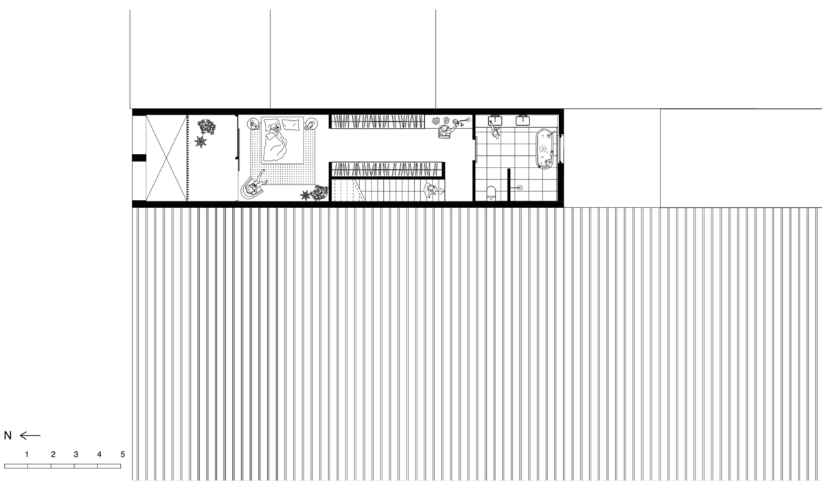
Construida en hormigón visto, sus 180 metros cuadrados se reparten en tres niveles, con un aumento de la privacidad conforme ascendemos. La planta baja, a la que se accede por el garaje, cuenta con una oficina y un dormitorio, mientras que el piso superior es un espacio diáfano donde una cocina central separa las zonas de salón y comedor. El programa se remata en altura con el dormitorio principal, un vestidor generoso y un gran baño.
La estructura minimalista de la fachada, con una cruz de hormigón y amplias aberturas, tiene su réplica en el patio ajardinado de la parte posterior, que conecta las tres plantas. Esta disposición abierta supone una reinterpretación del «shinrin-yoku» (o baño de bosque), una práctica japonesa que vincula la buena salud con una inmersión en la naturaleza. Así, la abundancia de huecos permite enmarcar las vistas de la vegetación desde el interior, al tiempo que garantiza una excelente iluminación natural.
La sencillez de líneas, casi ascética, contrasta con la alternancia de materiales simples y nobles. Así, el hormigón de suelos y escaleras convive con el mármol, el acero inoxidable de las barandillas o la carpintería de roble.
Los grandes ventanales, las paredes blancas y la abundancia de espacios abiertos ayudan a crear una sensación de amplitud y bienestar, a pesar de la estrechez de la fachada. Un hogar ideal para un cliente aficionado a la meditación que realiza frecuentes viajes de negocios.
La organización del edificio evoca el equilibrio con su planteamiento de superficies decrecientes a medida que ascendemos. Además, los arquitectos Oliver du Puy y Charlie Singh han incluido dos enormes cruces, una en la parte abierta del tejado y otra en la fachada norte. Liberadas de su significado religioso, simbolizan aquí una conexión entre espacios que marcan la proporción y la armonía de este inmueble con sus vecinos.
















