SAUNA
Proyecto de Panorama Arquitectos en Ranco, Chile.
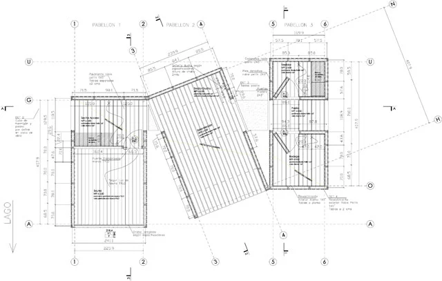
El terreno se sitúa en Ranco en el distrito de lagos, Chile, sobre una roca de granito oscuro, en la orilla y rodeado de montañas cubiertas de cipreses. El proyecto de 30m2 consiste en una sauna, una terraza cubierta y un vestuario, cada uno de los cuales tiene orientaciones diferentes, hacia la roca y hacia el lago; los tres volúmenes están conectados por una circulación orientada norte-sur. Los interiores están revestidos de madera de álamo. El exterior en cambio, se revistió de madera de roble por su dureza frente al clima extremo que lo tornará de color gris, pareciéndose a las construcciones originales de la zona.

Fotografías: Nicolas Valdés

















