Rodeada de una vegetación lujuriosa y sin calendario, casa AMB
En el municipio brasileño de Guarujá, en el estado de San Pablo, se encuentra esta vivienda denominada AMB House, obra Bernardes & Jacobsen Arquitetura. La misma presenta una profunda integración con la naturaleza selvática circundante.
-Leonardo-Finotti-1-1024x682.webp)
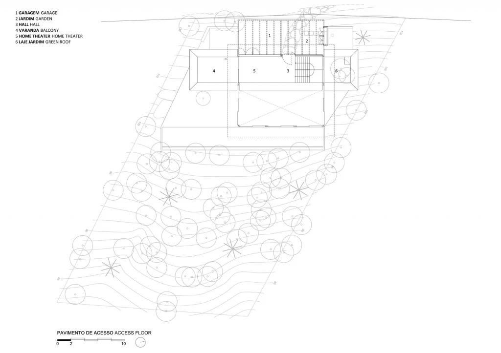
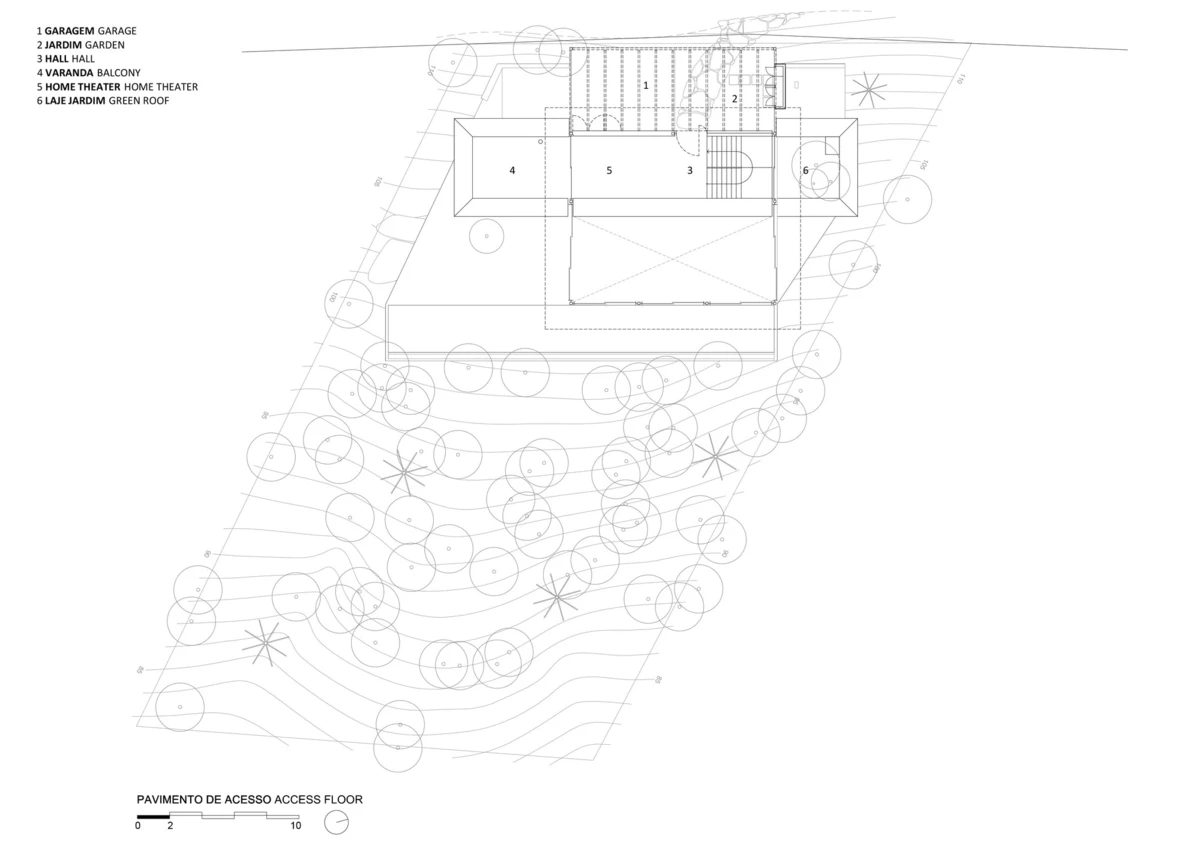
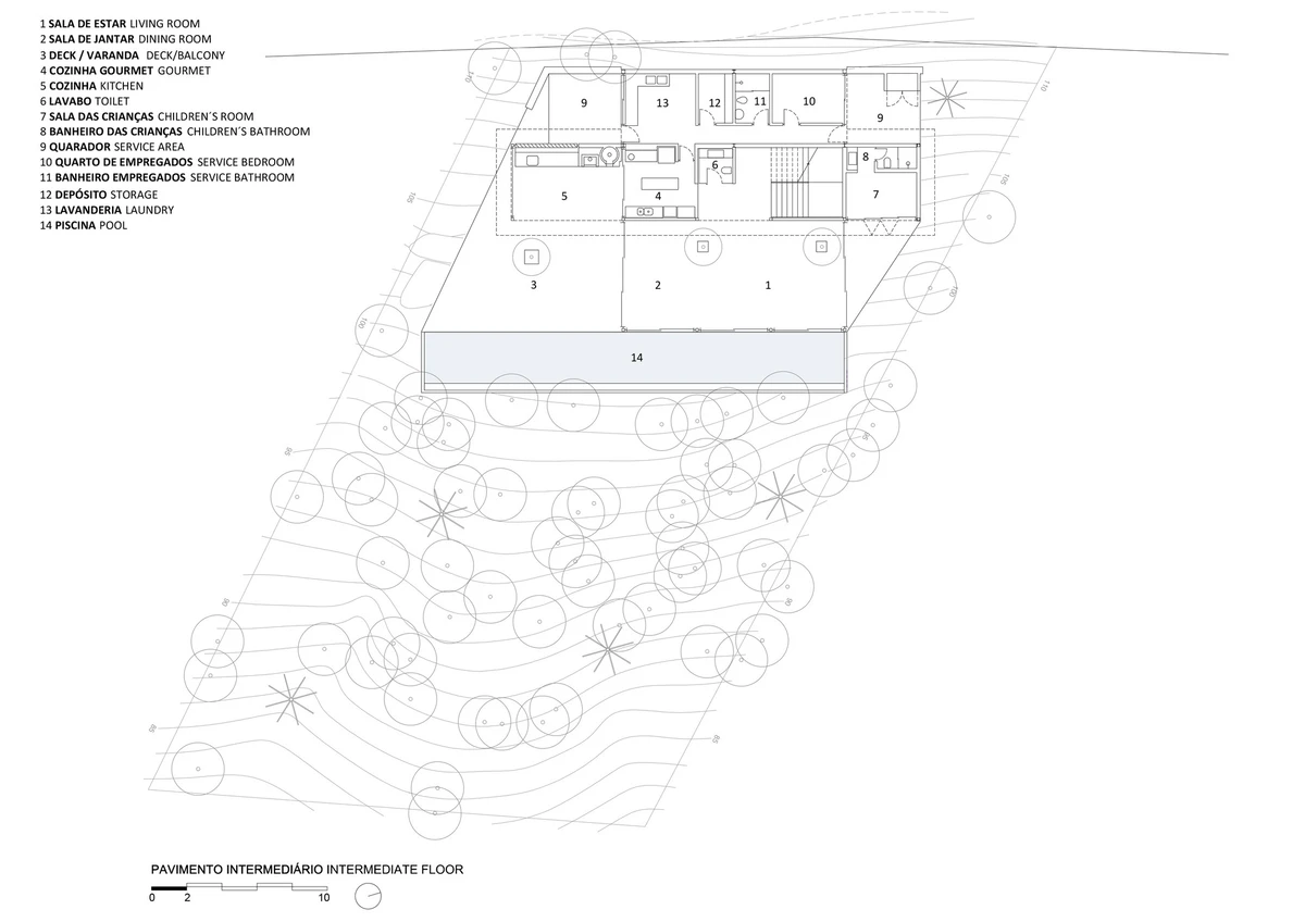
Levantada sobre una escarpada ladera y con 5 puntos de apoyo, su distribución invierte la tipología habitual y coloca los espacios de descanso y privativos en la parte inferior, en donde están ubicadas 5 suites con vistas al mar, logrando de esta manera un plus de privacidad y sombra. En la parte más elevada de la vivienda se encuentran las zonas comunes con unas impresionantes vistas.
-Leonardo-Finotti-3-1024x682.webp)
El acceso se realiza por la parte superior siendo esta un altillo con vistas al salón de doble altura. Revestido de cristal, el diseño dota de extensas vistas al contexto de bosque virgen.
-Leonardo-Finotti-6.webp)
Árboles de bambú en el interior y palmeras plantadas en el segundo piso de la cubierta diluye el límite entre ambientes de cultivo y las zonas construidas. Realizada en madera de teca brasileña, esta espaciosa casa colina está integralmente vinculada a la selva en la que se ha colocado.
-Leonardo-Finotti-5-682x1024.webp)
Fotografías © Leonardo Finoti

-Leonardo-Finotti-2-1024x682.webp)
-Leonardo-Finotti-7.webp)
-Leonardo-Finotti-8.webp)
-Leonardo-Finotti-4-1024x682.webp)



