«RESIDENCIA DE ESTUDIANTES»
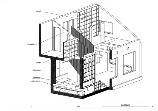
Proyecto de Ruetemple Arquitectos (Rusia). Se trata de una habitación de 33m2 para dos hermanos con un área de trabajo y otra de recreo en una vivienda de Moscú, Rusia.

El concepto consiste en la existencia de una área de trabajo fija y un área de recreo variable y dinámica, gracias a un cubo transformable. El cubo está compuesto por tres módulos móviles. Dependiendo de la posición de los módulos, el cubo consigue convertir la habitación en un cuarto de juegos, una área de descanso, un espacio dentro de otro o una habitación con 1-2 camas.
Entre las vigas, se han dispuesto unas hamacas en forma de cuadrícula en las que uno puede tumbarse a mirar el cielo o leer un libro.
Fotografías: Ruetemple





































