Recuperando espacios urbanos en Sicilia
La reconversión de un solo edificio puede contribuir a dinamizar zonas urbanas especialmente sensibles. Este es el caso del Eco Bar, un establecimiento abierto el año pasado en la periferia de Ragusa, una ciudad situada en el sureste de la isla de Sicilia, que ha conseguido ser en poco tiempo un referente para un barrio deprimido.


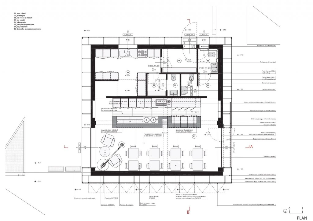
El proyecto ha corrido a cargo del arquitecto italiano Giuseppe Gurrieri, que ha transformado las antiguas taquillas del polideportivo adyacente de su ciudad natal –abandonadas y en ruinas desde hacía años- en una atractiva cafetería. Su estudio se adjudicó la licitación de esta propiedad municipal por presentar una renovación sugerente, que además recuperaba la vieja construcción de forma económica al usar diversos materiales reciclados.

Para adaptarse a un presupuesto ajustado, realizó una piel exterior de bajo coste en forma de cobertizo con placas de cemento Aquapanel y tablones recuperados de madera, pintados en un alegre color distintivo amarillo. Esta estructura envuelve la anterior edificación de planta cuadrada y cubierta plana, realizada a finales de los años 80, consiguiendo así un buen aislamiento térmico y un espacio intermedio de almacenamiento en todo el perímetro. Así mismo, sirve para escamotear las instalaciones técnicas del Eco Bar, como la caldera, los aparatos de aire acondicionado o la alarma antirrobo.

Además, la fachada norte tiene un uso adicional como punto de reunión, ya que la parte final del revestimiento en madera se puede levantar por tramos, convirtiéndose en mesas exteriores donde disfrutar de los días soleados, tan abundantes en esta isla mediterránea.

En los laterales, dos grandes aberturas enfrentadas (la entrada acristalada del bar y un enorme ventanal) aseguran una buena iluminación natural y proporcionan vistas a las instalaciones deportivas y a los pisos en construcción.



En el interior, una larga pared esmaltada con resina de poliuretano verde separa la zona abierta para los clientes de la cocina, los aseos y el almacén. Los pilares y las vigas originales se dejaron en hormigón visto, mientras que para el suelo se eligió hormigón alisado con un acabado de resina transparente. En cuanto a la barra, diseñada como un bloque completo para delimitar el espacio con rotundidad, está realizada con láminas de hierro que aportan carácter y un tono oscuro que encaja muy bien con el animado mobiliario de estilo retro.

Una revitalización urbana con fuerza y estilo de sobra para iluminar la periferia industrial que la rodea.

Fotografías Filippo Poli


