Plugin Houses: la peculiar solución de PAO para rehabilitar casas deterioradas
La meteórica expansión industrial de China ha ido dejando casi vacías algunas áreas rurales, pues muchas familias optaron por trasladarse a las grandes ciudades en busca de un futuro mejor. Como consecuencia, muchos pueblos acumulan casas centenarias en ruinas.
Es el caso de Shangwei, una isla campesina en la periferia de la gigantesca y tecnológica Shenzen. Con el propósito de contrarrestar este abandono e incentivar a un grupo de artesanos asentados recientemente en la zona, el gobierno local ha decidido explorar alternativas para rehabilitar las viviendas deterioradas.
La administración local está obligada por ley a renovar las propiedades con techos derrumbados. Sin embargo, realizar esta tarea resulta muy complicado sin dañar las ya precarias estructuras de las propiedades colindantes.
Finalmente, el apoyo de la Fundación Leping y la organización sin ánimo de lucro FuturePlus ha hecho posible iniciar un programa piloto en colaboración con el estudio PAO (People´s Architecture Office).
La solución propuesta por el equipo chino es Plugin House, un sistema de construcción modular que deja intacta la estructura original mientras se va construyendo la nueva casa en el interior de la ya existente. El edificio se levanta con paneles prefabricados que incorporan conexiones interiores especiales. Solo se necesita una herramienta para ensamblarlos, por lo que no es preciso recurrir a mano de obra cualificada. De esta forma, la casa puede quedar montada en menos de un día.
En Shangwei, PAO diseñó dos personalizaciones distintas. La Plugin House para la familia Huang tuvo que amoldarse a una superficie de tan solo 15 m2. Como parte del tejado todavía seguía en pie, la inserción de la nueva vivienda funciona como refuerzo estructural. Asimismo, se aprovechó el hueco creado por el derrumbe parcial de un muro para habilitar un mirador panorámico en voladizo en la planta superior.
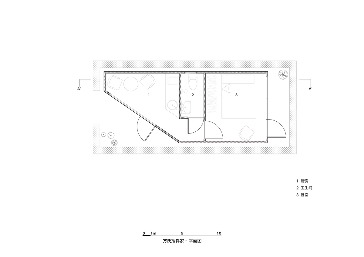
En la Plugin House para la familia Fang, en cambio, la ausencia total de tejado permitió crear cubiertas a diferente nivel, abriendo así un gran ventanal que ilumina la parte posterior de la casa.
En la fabricación industrial de los paneles se utilizan materiales de alta calidad que aseguran la eficiencia energética, y la producción en serie garantiza un precio asequible. Además, la versatilidad del modelo hace que se adapte con facilidad a múltiples configuraciones.

















