PEASS (Parque Empresarial de Arte Sacro)
De Suarez Santas Arquitectos en Sevilla (España).

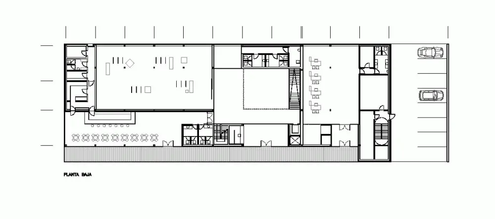
Situado en el límite norte de Sevilla, el Parque Empresarial de Arte Sacro reúne en un singular complejo arquitectónico la producción de artesanía sacra más destacada de la región. El proyecto –inspirado en el zoco de las ciudades mediterráneas– busca recuperar la atmósfera íntima en la que los artesanos han trabajado tradicionalmente y que la ciudad contemporánea no ha sabido conservar. Consta de 9 edificios cuya agrupación crea un gran alfoz con identidad propia, un amplio espacio de condición urbana y pública formado por un sistema de estrechas calles perpendiculares entre sí y en cuyas intersecciones se ubican dos plazas de pequeñas dimensiones, pensadas para el descanso del artesano y la organización de mercados eventuales.

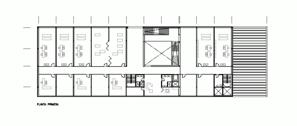
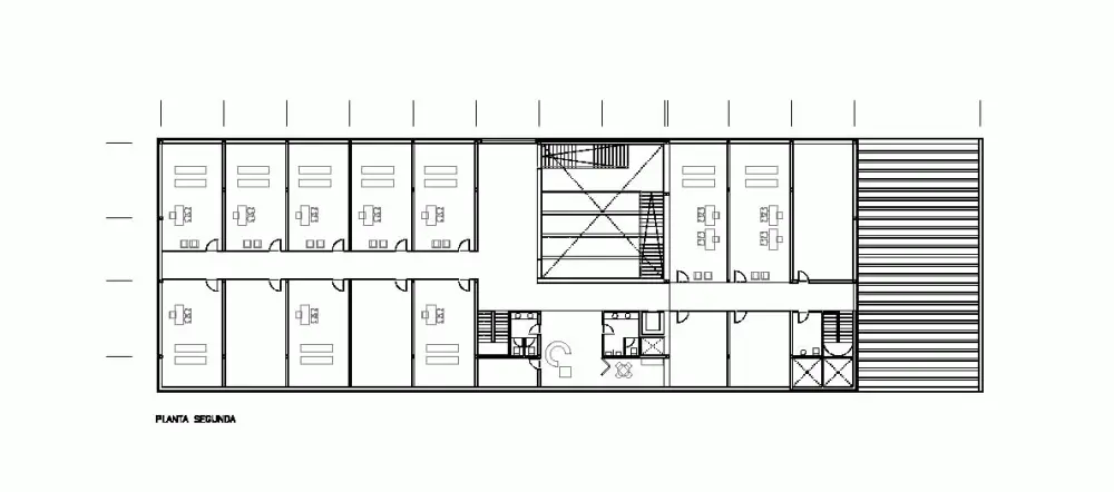
Cada edificio alberga un número variable de talleres proyectados como eficaces continentes para la producción artesanal. Volúmenes modulados según una retícula de cinco metros y adaptables a las necesidades de cada gremio, dotados de grandes alturas, fácilmente accesibles y convenientemente aislados del exterior. Su iluminación natural ha sido objeto de especial estudio porque su principal fuente lumínica son lucernarios orientados al noroeste y pequeños patios que además sirven para separar unos talleres de otros. Las zonas próximas a las fachadas exteriores reciben luz a través de una celosía de piezas prefabricadas que también sirve para proteger la intimidad del trabajo, sin ocultarla completamente a los posibles visitantes.








