Nishinoyama House promueve los jardines interiores como zonas de integración urbana
Cuando la arquitecta Kazuyo Sejima, cofundadora del estudio japonés SANAA, empezó a diseñar el complejo Nishinoyama House tenía claro que iba a ser algo más que un conjunto de diez viviendas con un minúsculo jardín individual como las casas del entorno.
Ubicado en una tranquila zona residencial de Kioto, el terreno presentaba una ligera inclinación y estaba junto a una gran huerta, lo que le proporcionaba un cierto grado de libertad dentro de un área densamente urbanizada. Por esta razón decidió dar una importancia especial a la vegetación, creando una distribución interna fuera de lo común.
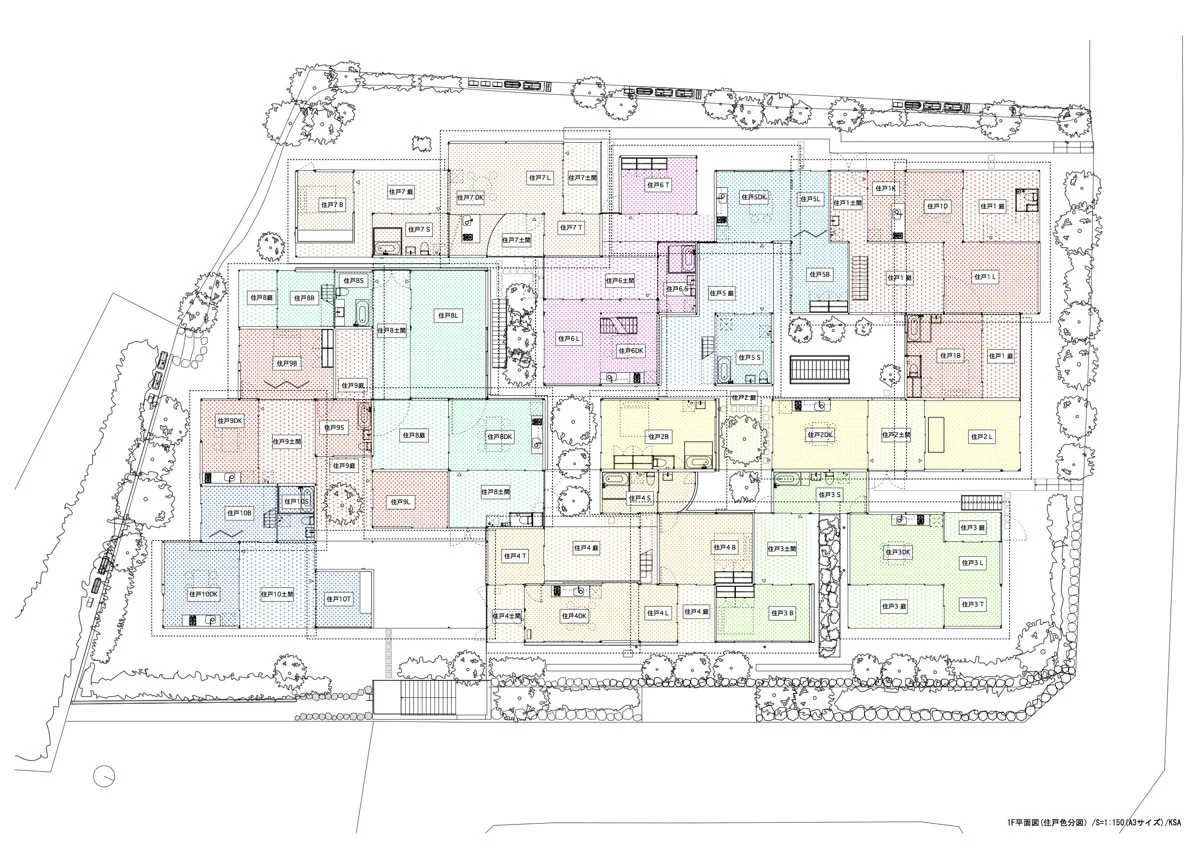
Una estructura unificadora conecta las diez propiedades mediante un total de 21 tejados con diferentes inclinaciones. Esta original disposición permite crear una serie de callejones y jardines interiores que llenan el área de vida y dinamismo. Cada tejado tiene el tamaño aproximado de los unifamiliares del vecindario, por lo que, al unirse en un todo metálico, el resultado se asemeja a un grupo de casas «machiya» tradicionales. Estas antiguas viviendas de comerciantes y artesanos se caracterizaban por su estrechez (contrarrestada con una gran profundidad, pues pagaban impuestos según la anchura de la fachada), el empleo de la madera y la presencia indispensable de un jardín en miniatura como punto de luz adicional.
En la versión de Sejima, las habitaciones quedan desalineadas respecto a su correspondiente tejado, generando así casi tantas pequeñas zonas verdes y callejones bajo los techos comunes como habitaciones tiene el recinto.
Con una dispersión heterogénea, cada casa aparece cubierta por dos o tres tejados. En algunas, las habitaciones están interconectadas rodeando el jardín, mientras que en otras son independientes. Así mismo, las estancias presentan diferentes alturas, desde las tipo ático –con techos bajos y sin especiales pretensiones– hasta las tipo loft, con techos altos y mucho sol. La profusión de acristalamientos garantiza en todas ellas una adecuada ventilación y abundante iluminación natural.
El atractivo paisaje de zonas verdes semicubiertas se alterna con un jardín de uso público a lo largo de todo el perímetro de la Nishinoyama House, creando un ambiente relajado e inspirador. No es de extrañar, por tanto, que varios artistas locales utilicen estas viviendas como estudios.






