MWArchitekten optimiza el balance energético de su adosado austríaco
La firma MWArchitekten ha finalizado este año una casa adosada en Vorarlberg (Austria). La construcción, formada por dos viviendas de 125 m2 con garajes separados, se adapta de manera impecable a la topografía en ligera pendiente de la parcela.
Uno de los factores limitantes era el económico, por lo que los arquitectos Lukas Mähr y Carmen Wurz tuvieron que hacer frente al reto de idear un hogar atractivo con pocos recursos. Para ello, prescindieron de detalles superfluos y se centraron en la planificación y el desarrollo de un sistema que optimizase el consumo energético.
La tipología de la casa adosada se ajusta a esa necesidad de una vivienda compacta, con privacidad suficiente para cada familia pero con instalaciones compartidas a fin de favorecer el ahorro.
La fachada sigue sin problemas la suave ladera y el tejado a dos aguas se rebaja en altura en una de sus vertientes para adaptarse también a la menor cota. En el interior, la diferencia de alturas se salva mediante solo dos escalones en la sala de estar y otros dos en el acceso a la terraza abierta.
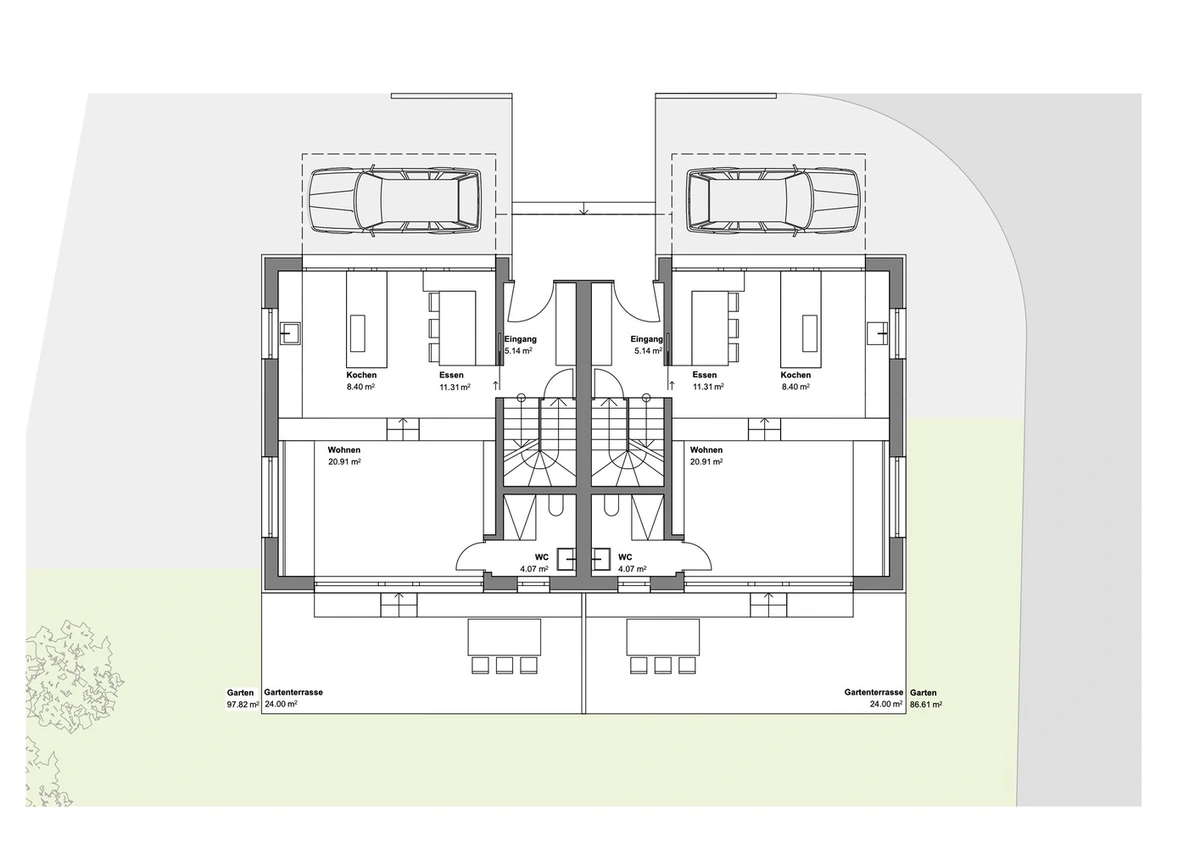
La planta baja alberga la cocina, el comedor y el salón en un único espacio diáfano con vistas al valle. El piso intermedio se dedica al descanso, con el dormitorio principal, dos cuartos para los niños y un amplio baño. Por último, el nivel superior abuhardillado resulta ideal para un despacho tranquilo, así como para tomar el sol en su terraza panorámica de casi 27 m2.
Esta casa de campo contemporánea destila funcionalidad, desde los muebles realizados a medida (sofá, estanterías y armarios, entre otros) hasta sus techos no demasiado altos para ahorrar energía. Además, la elección de materiales, como la madera en tonos claros, las paredes pintadas en blanco o los peldaños flotantes de la escalera, contribuyen a crear una sensación extra de amplitud.
El volumen compacto de la vivienda y un buen aislamiento ayudan a lograr un notable equilibrio energético. En cuanto a la calefacción, se decidió utilizar una bomba de calor geotérmica. El presupuesto ajustado no permitió instalar un sistema de refrigeración artificial. En su lugar, un tragaluz programable situado al final de la escalera distribuye aire fresco por todas las habitaciones.
















