Mork Ulnes Architects deconstruye la cabaña noruega tradicional
Con sus escasos 84 m2, Mylla Hytte se alza orgullosa en medio de un frondoso bosque de pinos. Situada al norte de Oslo, es el retiro elegido por una joven pareja estadounidense con dos hijos para disfrutar de la vida al aire libre.
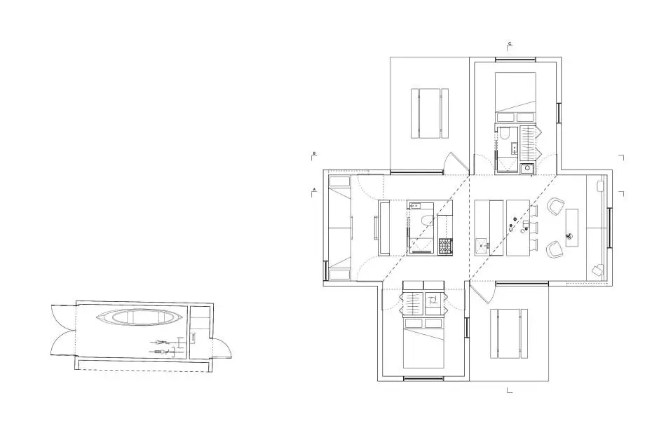
El proyecto, obra del estudio Mork Ulnes, supone una lectura contemporánea de la cabaña noruega o «hytte». A diferencia del esquema tradicional, pequeño, con un pasillo estrecho, techo bajo y ventanas diminutas, los arquitectos trazaron una planta mucho más fluida. Aunque la legislación obligaba a construir un tejado a dos aguas, se ideó una disposición que lo divide por la mitad, creando una configuración de molinete.
Esta atrevida vuelta de tuerca permitió generar dos espacios exteriores donde disfrutar del sol protegidos del viento y de la nieve: un porche para la mañana y otro para la tarde. Además, su forma de cruz permite multiplicar las panorámicas. El salón ofrece vistas del lago Mylla, desde la habitación de los niños se divisan las copas de los árboles, los invitados pueden contemplar el paisaje de la ladera y, por último, el matrimonio amplía ese horizonte en el dormitorio con una perspectiva privilegiada del bosque.
En cuanto al interior, se favoreció un flujo libre entre las estancias, que incluyen una sala de estar con cocina abierta, tres dormitorios, dos baños –pequeños pero eficientes– y una sauna. A esto hay que sumar un anexo para guardar canoas, esquíes y bicicletas. A fin de evitar la sensación de un callejón sin salida, cada habitación cuenta con dos puertas de acceso escamoteables.
Como materiales, se utilizó madera contrachapa de pino para el techo, las paredes y el mobiliario, mientras que tanto los suelos como los muros de la cocina y los baños lucen el hormigón visto. La sensación de calidez y luminosidad se acentuó mediante la incorporación de muebles a medida (literas, sillones, estanterías…) también en madera.
El exterior se revistió con unos austeros tablones de pino sin tratar, que con el tiempo evolucionarán hacia tonos grises. Los techos afilados homenajean a las cabañas de antaño, pero los amplios ventanales de cada fachada ofrecen una versión más radiante y práctica de esta construcción tradicional.









