Lógica en lo complejo
El Palacio de Congresos y Auditorio de Plasencia, de los arquitectos Selgas Cano, es un espléndido e intrigante edificio que se asienta como un ligero meteorito, apenas apoyado en los límites urbanizados de la ciudad extremeña.
Asumen los arquitectos que el solar del auditorio terminará absorbido por el futuro ensanche de la localidad, y la apuesta compositiva parece haber tenido en cuenta ese previsible desarrollo. La estrategia proyectual es aquí la más efectiva a la hora de encajar las múltiples funciones de un auditorio moderno en lo que desde el exterior aparenta ser un prisma irregular.
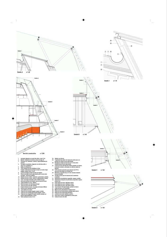
Una vez compuestas las salas principales como espacios ortogonales (la caja de zapatos es la mejor geometría aplicable a tal fin) y como núcleo portante del edificio, la práctica totalidad del perímetro se reserva a las funciones de esparcimiento y circulación, lo cual permite aislar perfectamente las salas principales del exterior, explotar al máximo las vistas sobre la bellísima serranía de Gata al oeste, ofreciendo espacios en los que no solamente se circula sino que se explora el edificio y su entorno y, por otro lado, jugar más libremente con la geometría de la envolvente, dando al proyecto su singularísima apariencia.
De ello resulta un proyecto de inquietante belleza, un objeto de formas irregulares pero claras, de superficies blancas traslúcidas, acentuadas por las líneas estructurales de cableado y tubos de la envolvente, interrumpidas aquí y allá por los dos grandes vacíos de sus fachadas: el de la entrada al edificio, con su elegante pasarela de acceso, y el del mirador hacia el oeste, espacios por los que asoman destellos de la calidez de los colores y acabados interiores y por los que se nos llama a visitarlo.





























