LOFT FOR
Proyecto de adn Architectures en Bruselas (Bélgica).
Descripcion de los arquitectos: » Vamos directo al grano: una renovación impuesta, cuatro paredes y un par de ventanas, necesidades funcionales para dormir, comer, leer y lavar. Dos cuerpos internos que abrazan el envoltorio sin tocarlo, opaco, translúcido, aireado, abstracto.
Un lugar: Una superficie sin terminar de 96 metros cuadrados: paredes hechas de bloques de barro, techo de hormigón en bruto, ventanas en dos de las cuatro paredes y dos ductos técnicos.
Un programa: Diseñado para una pareja que quiere una reconversión interior tipo loft con un uso eficiente del espacio.
Una respuesta: Búsqueda de pureza de la forma y simplicidad funcional.
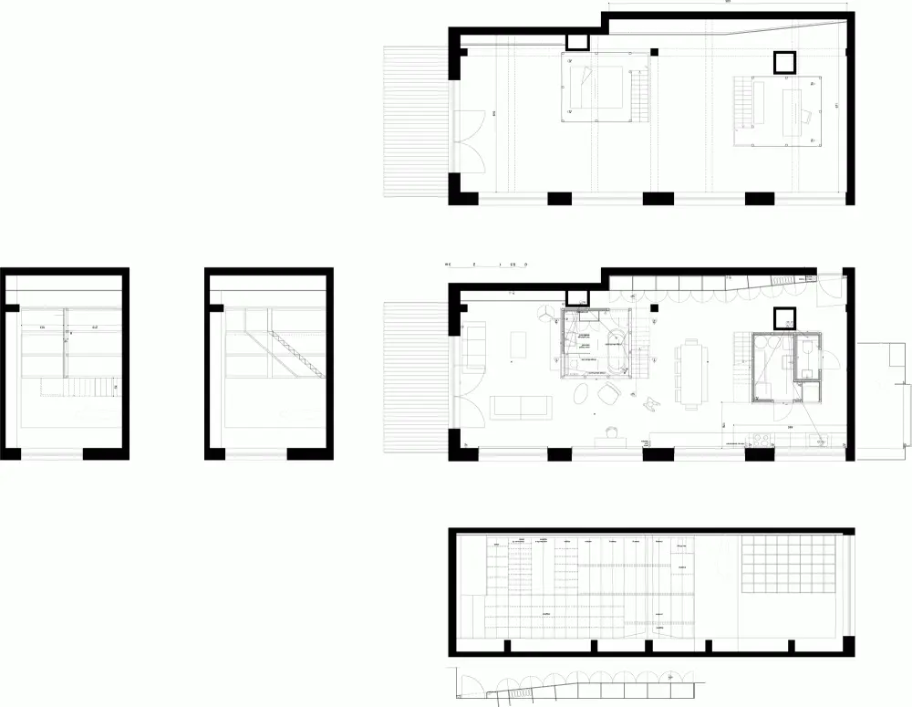
Método: La creación de un mínimo de dos nuevos volúmenes y el uso de un conjunto muy limitado de materiales.
Organización: Dos volúmenes se construyen y tres muebles se instalan para estructurar el volumen. Los dos volúmenes metálicos en la planta baja reciben las dos funciones que requieren de puertas cerradas: el cuarto de baño y el lavadero. Las plantas superiores de los volúmenes esconden un dormitorio y una oficina. La posición de estos volúmenes a lo largo de los conductos técnicos determina diferentes volúmenes con diferentes cualidades. Las tres piezas de mobiliario estructuran y dan función al espacio que queda: un largo mueble de cocina en un espacio estrecho entre la entrada y la sala de lavandería, una pared de almacenamiento cerca de la entrada y una biblioteca en el espacio más íntimo que lleva al balcón. Los materiales son pavimento de poliuretano para el suelo; metal sólido o perforado para los elementos estructurantes, MDF estratificada para los muebles, con un acabado de pintura para exacerbar la textura de los distintos materiales. El techo se mantiene como era para recordar el volumen unificado preexistente »
Fotografías: Filip Dujardin





























