Livsrum, una arquitectura humana para el tratamiento del cáncer
Cuando el estudio danés de arquitectura Effekt abordó el diseño del nuevo centro de asesoramiento sobre el cáncer para el hospital de Næstved, tenía por delante varios desafíos. Por una parte, crear un espacio acogedor y familiar que sirviese para pacientes de cualquier edad, algo alejado del modelo de centro hospitalario tradicional, frío y aséptico.


Así mismo, la parcela donde se asentaría el edificio estaba rodeada por tres carreteras, por lo que se debía minimizar el ruido causado por el tráfico.

Además, había que proyectar el interior de manera que fuese eficaz a la hora de prestar los distintos servicios: terapia, consejo médico, rehabilitación, visitas, entretenimiento, etc.


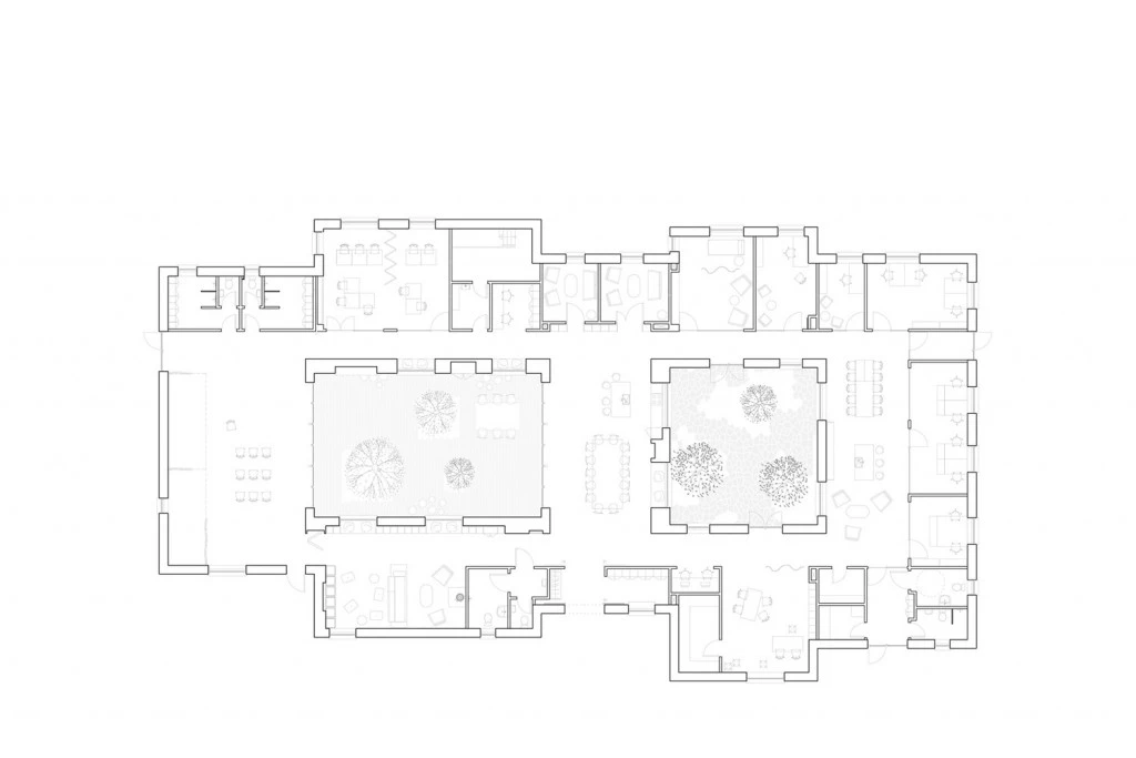
El equipo de Copenhague se puso manos a la obra y así nació Livsrum (espacio vital, en danés): un conjunto de siete casas pequeñas interconectadas, con una ingeniosa distribución que permite albergar dos patios interiores, privados y libres de ruido. Inspirados en la estética de los monasterios medievales, uno de ellos está dedicado a la meditación y el reposo, mientras que el otro promueve la actividad física y la interacción social.

Cada casa se dedica a una función específica: cocina, biblioteca, salón, salas para las visitas, zona de talleres, gimnasio y área de bienestar, dando todas ellas a uno de los dos patios centrales. Los grandes ventanales y las puertas acristaladas aseguran una excelente iluminación natural, al tiempo que favorecen la interacción y la fluidez entre espacios.

Se trata, pues, de una apuesta decidida por una arquitectura humana, en la que la pieza principal son los pacientes con cáncer, y donde todo está pensado para su comodidad y bienestar, ya sean niños o personas mayores.

Los edificios tienen formas diversas, con tejados a dos aguas que van variando en altura y ángulos, lo que proporciona un toque desenfadado al conjunto, que armoniza muy bien con el entorno de casas unifamiliares.

A su vez, los techos y paredes exteriores revestidas de fibrocemento blanco contrastan con las fachadas de entrada, cubiertas con tablones verticales de madera, añadiendo aún más dinamismo.

En el interior, unas espectaculares estanterías que cubren paredes enteras y la presencia de mobiliario acogedor por todas partes dan calor familiar a cada estancia.

Todo ello ejerce un efecto estimulante y protector en los pacientes, un sentimiento de hogar en el que recuperar la alegría y la esperanza, algo primordial para complementar el tratamiento de la enfermedad.
Fotografías: EFFEKT, Quintin Lake y Thomas Ibsen








