LITTLE WILLY
Proyecto de LOW Architecten en el barrio más de moda -quartier Dansaert- de Bruselas (Bélgica).
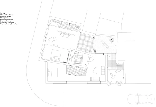
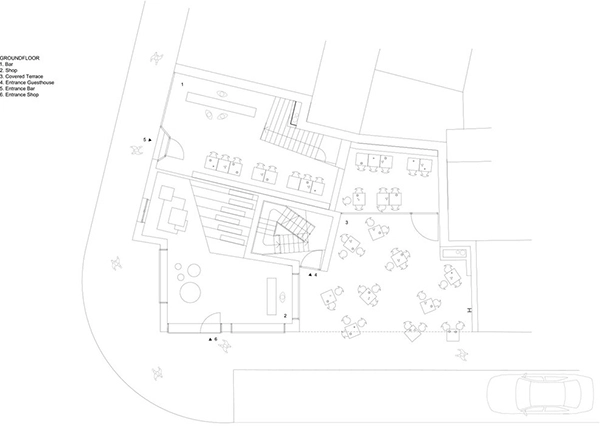
LITTLE WILLY es un proyecto innovador que abarca un B&B (Bead and Breakfast), tienda/galería, restaurante y vivienda privada, en una parcela diminuta. Los arquitectos de LOW propusieron el concepto de una estructura que que cubriera el antiguo edificio del S. XIX. El encargo trataba de diseñar un edificio vanguardista que cubriera una variedad de funciones; construir espacio extra en la parte antigua de la ciudad y crear una atmósfera muy cálida y acogedora para visitantes y residentes.
LOW transformó una vivienda única en hotel y ático dúplex. El edificio neoclásico existente era valioso históricamente y se renovó completamente. Para crear espacio extra para visitantes, restaurante, tienda, galería y apartamento duplex se añadió una extensión inevitable al solar adyacente. Los espacios residenciales están separados por generosos espacios exteriores a base de terrazas y tejados ajardinados. El nuevo volumen se integra perfectamente con los alrededores e invita a un interesante dialogo entre lo nuevo y lo viejo. El ángulo representa la transición entre las diferentes alturas de los edificios en ambas calles. El nuevo volumen se levantó y se fue cortando gradualmente para crear un cuerpo ligero desde el punto de vista volumétrico; esto generó espacio para grandes terrazas privadas, con vistas a las zonas interiores y la calle. Gracias a esta unión entre lo interior y lo público se consiguió luz extra para una calle relativamente oscura.
El contraste de materiales entre lo nuevo y lo antiguo contribuye al aspecto general del hotel, en un barrio de viviendas neo-clásicas en su mayoría. El nuevo edificio está construido en hormigón de gran calidad (antracita) y se restauró el revoque de la mansión existente. Se tuvieron muy en cuenta medidas sostenibles como la re-utilización del agua de lluvia, ventilación con recuperación del calor, aislantes térmicos y vidrios bajo emisivos; caldera de alto rendimiento y un pequeño molino de viento para generar electricidad.
LITTLE WILLY ha contribuido significativamente a la regeneración urbana de esta zona específica. La conservación del patrimonio histórico unido a la expansión innovadora dan como resultado un complejo llamativo, icónico e integrado potenciando la imágen positiva del barrio.
Fotografías de Stijn Bollaert















