Las zonas verdes son las protagonistas en la Casa Jardín 58
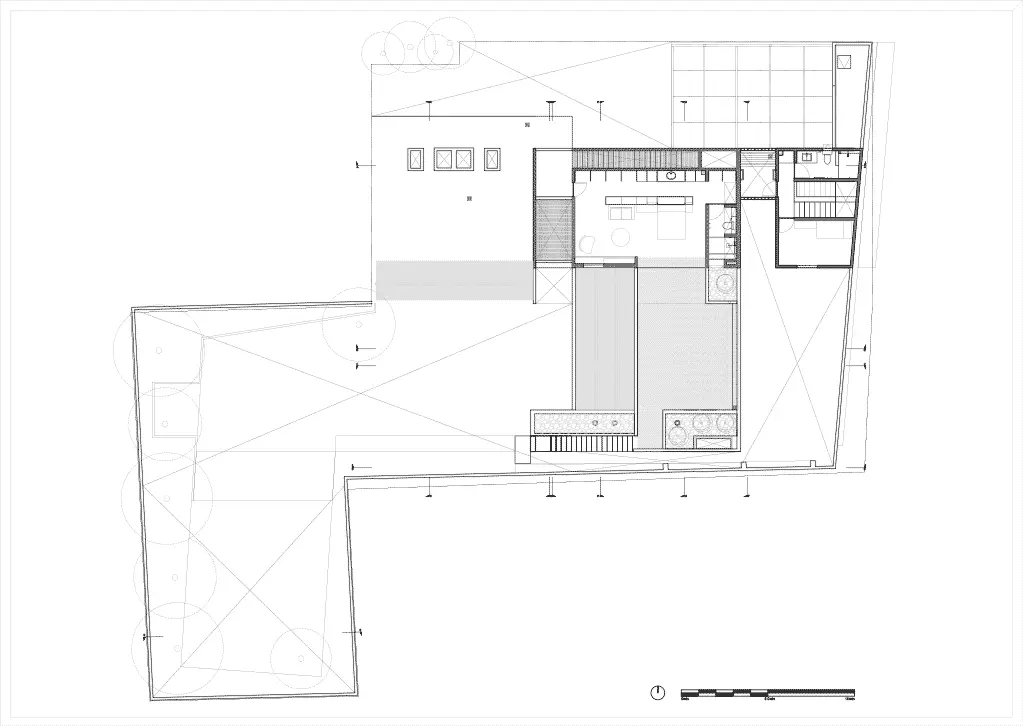
Ubicada en la colonia San Ángel de Ciudad de México, la Casa Jardín 58 se organiza en torno a un espacioso jardín central.
Obra del estudio DCPP Arquitectos, esta vivienda de diseño nada convencional cuenta con un área de 530 m2. Los clientes querían aprovechar al máximo la gran superficie ajardinada de la parcela, de ahí su planta marcadamente irregular.
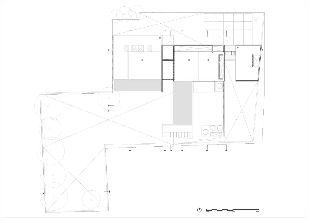
La planta baja se concibió para realizar toda la vida cotidiana, por lo que este nivel incluye el dormitorio principal, todas las zonas comunes y el área de servicios. El piso superior se reservó como dormitorio de invitados y dispone de una terraza.
Para sacar el máximo partido a la zona verde, el jardín se dividió en dos, pero sin necesidad de usar columnas interiores que truncaran la continuidad visual. Esto se logró por medio de cuatro vigas de acero con acabado en blanco para integrarlas en la decoración del unifamiliar. Bajo ellas, el espacio rectangular acoge una prolongación al aire libre del salón, con barbacoa y protegida de la lluvia por un techo transparente. A su vez, las vigas van creando zonas de sombra que varían a lo largo del día.
La abundancia de grandes ventanales correderos contribuye a fomentar la vida en el exterior, mientras que la inclusión de dobles alturas, aleros y celosías en puntos estratégicos mitiga los rigores del sol, refrescando el interior.
En el lado del jardín más cercano a la calle predomina el arbolado, dispuesto de manera simétrica. En el opuesto, con forma de L, conviven las áreas de césped con un paisajismo que oculta las viviendas cercanas, dando la sensación de salir a un pequeño bosque. Además, al atardecer, la inmersión de la vivienda en el paisaje puede ser total si se abren de par en par las paredes acristaladas retráctiles que acotan cada parte.
Respecto a los materiales utilizados, la combinación de distintas maderas en suelos y puertas con el tono blanco omnipresente crea un ambiente muy acogedor. El ladrillo, a su vez, bien dispuesto en espiga en el exterior o bien como celosía en la planta superior, aporta un toque rústico que encaja de maravilla en este proyecto residencial de casa-jardín.
















