La vida transcurre plácida en la Casa de Magalhães
Nuestro viaje arquitectónico nos traslada hoy hasta São Julião de Freixo, una pequeña localidad portuguesa situada junto a Viana do Castelo. En esta apacible comarca del extremo norte del país destaca la Casa de Magalhães, proyectada por Carvalho Araújo, un estudio con oficinas en Braga y São Paulo que se caracteriza por sus diseños racionales y elegantes, con una clara inclinación hacia la contención formal.
En esta ocasión, todo partió de una vecina del pueblo. Ya mayor y sin hijos a los que legar la casa familiar y una amplia parcela anexa, donó ambas para construir un hogar de ancianos. La única condición era que la construcción terminase antes de su muerte.
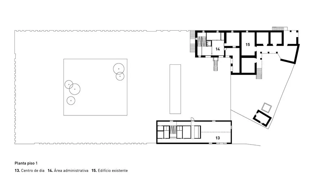
Así pues, los arquitectos tomaron esa gran casa blanca como símbolo a la hora de crear el nuevo edificio, que incluye la residencia y un centro de día. Esta expansión del espacio construido original se articula a través de dos patios, uno de servicio –en torno al que se distribuyen la cocina, el comedor y la lavandería– y otro social, adornado con olivos.
El desnivel natural conecta el único piso con la cota del terreno. Es allí donde 27 habitaciones con vistas al exterior y dispuestas alrededor del soleado patio social proporcionan una sensación de conexión y de seguridad a los usuarios. La existencia de una sola planta, junto a la inserción de las dos áreas abiertas, desmaterializan en parte la construcción principal, como si se hubiese sustraído una porción al volumen total.
Además, el atrio divide la estructura en dos mitades, creando dos entradas opuestas y formando parte del amplio anillo interior de circulación que abarca ambos patios. Este espacio favorece la vida familiar del establecimiento mediante enormes ventanales de suelo a techo, que aportan cercanía y luminosidad a todas horas.
En el exterior, los ritmos verticales de la fachada alternan vidrio y hormigón como una referencia a los troncos de los árboles, al tiempo que destacan de las otras casas del entorno, rigurosamente encaladas. El acabado terroso del material encaja perfectamente con el paisaje de la zona. Otro detalle sutil de un proyecto realizado con cariño.













