En el corazón de Ajijic, México, surge La Ribera. Diseñado por ARS Degrees Atelier de Arquitecturas, este centro de cultura y artes no es solo un edificio, sino un entrelazado de historia, arte y arquitectura contemporánea, una redefinición del espacio cultural.

EL PULSO DE LA ARQUITECTURA
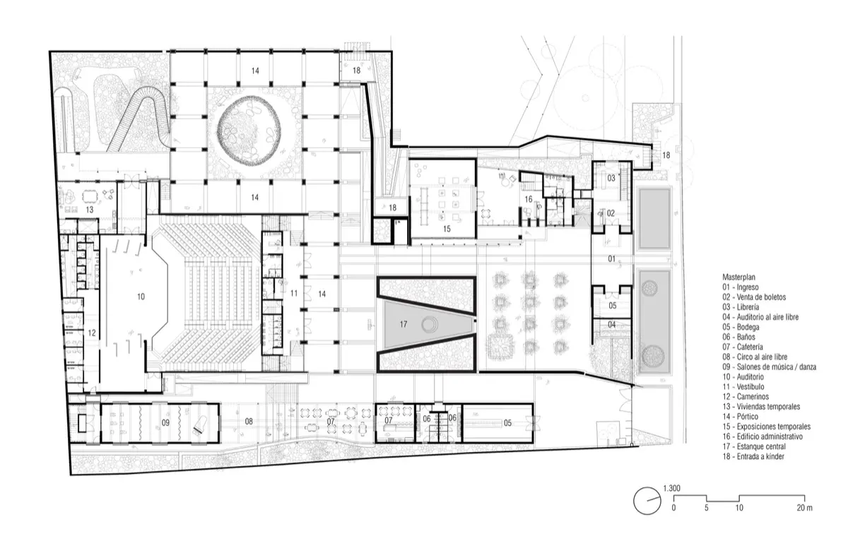
La Ribera se erige como un hito arquitectónico que dialoga con su entorno. Su ubicación, en un área que palpita con el legado cultural de la ciudad, junto a la orilla del río Chapala, le otorga un carácter único. La decisión de ARS Degrees Atelier de Arquitecturas de integrar el edificio en este contexto es, sin duda, una de sus mayores fortalezas. La fachada, una obra maestra de ingenio y sensibilidad, refleja el pulso del barrio, combinando elementos tradicionales con una estética vanguardista.


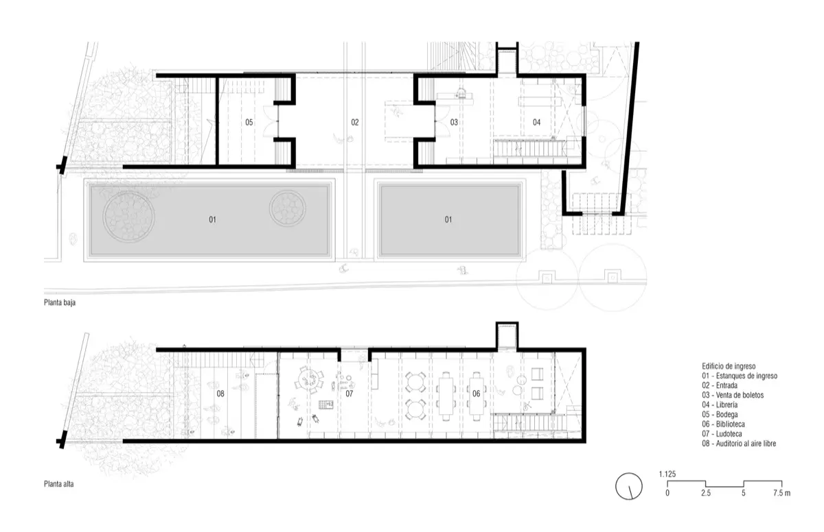
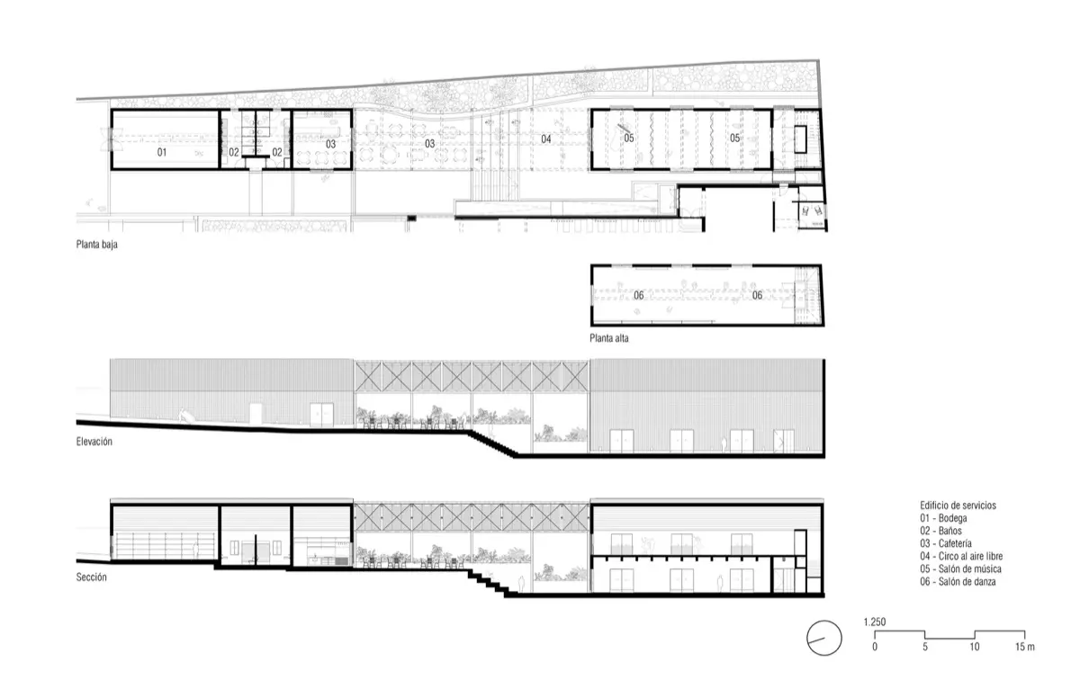
El interior de La Ribera es un espacio dinámico y versátil. La distribución de sus salas y áreas comunes ha sido pensada para fomentar la interacción entre los visitantes y el arte. Cada rincón del edificio está impregnado de luz natural, creando un ambiente acogedor y estimulante. Los materiales utilizados, que varían desde el hormigón hasta la madera, aportan texturas y colores que realzan la experiencia sensorial.


LA REDEFINICIÓN DEL ESPACIO CULTURAL
Uno de los aspectos más destacados de La Ribera es su compromiso con la sostenibilidad. ARS Degrees Atelier de Arquitecturas ha incorporado soluciones ecológicas en el diseño, tales como sistemas de ahorro de energía y uso de materiales reciclados. Esta visión sostenible no solo respeta el medio ambiente, sino que también establece un diálogo con el patrimonio histórico del lugar, honrando su pasado y mirando hacia el futuro.

La Ribera no es solo un centro de cultura y artes; es un punto de encuentro, un lugar donde el pasado y el presente se fusionan para crear un futuro vibrante. ARS Degrees Atelier de Arquitecturas ha logrado un equilibrio perfecto entre funcionalidad, estética y respeto por el entorno. Este proyecto es un claro ejemplo de cómo la arquitectura puede jugar un papel crucial en la revitalización urbana y la creación de espacios que inspiren y unan a las comunidades.

Más que un edificio, este proyecto es un testimonio de la evolución arquitectónica y un reflejo de la identidad cultural de la ciudad. Con este proyecto, ARS Degrees Atelier de Arquitecturas no solo ha creado un espacio para el arte, sino que también ha regalado a la ciudad un legado arquitectónico que perdurará en el tiempo.





Descubre el Panteón de ÁBATON, un diseño que redefine los espacios espirituales. Un lugar donde poder encontrarse con el paso del tiempo, de una manera tranquila y serena.