La Renovación Escobar lleva el siglo XXI al casco antiguo de Phoenix
La ciudad de Phoenix (Arizona) cuenta con un barrio impulsado en los años 20 y 30 donde parece haberse parado el tiempo desde el punto de vista arquitectónico. Conocido como F. Q. Story –en honor al impulsor urbanístico de la capital del estado–, alberga 602 casas que en su mayoría aún conservan los estilos propios de la época original.
Así pues, cualquier reforma en este entorno tan peculiar ha de realizarse con cuidado para no restarle nada de encanto. Siguiendo esta máxima, la firma local Chen + Suchart Studio inició hace un par de años la Renovación Escobar en uno de estos edificios, clasificado arquitectónicamente como Tudor inglés.
La casa había permanecido casi intacta durante cerca de 100 años, pero ahora tocaba darle un aire contemporáneo más funcional. Las estrictas ordenanzas de Phoenix dejaban claro que la fachada debía conservar su carácter histórico, por lo que los arquitectos transformaron el interior.
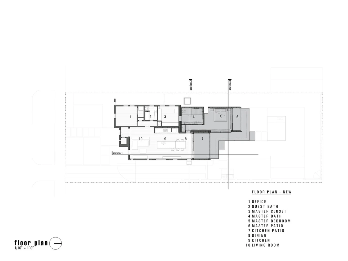
La vivienda existente de 100 m2 tenía un gran número de habitaciones pequeñas, con un jardín trasero de mayor extensión que la casa. Por tanto, la renovación se centró en eliminar divisiones interiores y ampliar el espacio a costa de sacrificar parte de la zona verde.
Se unificaron la sala de estar, el comedor y la cocina suprimiendo las paredes existentes. Además, se aprovechó el volumen que ocupaba el ático para despejar todavía más la zona, lo que originó un estilo abovedado en el salón, manteniendo la altura inicial en cocina y comedor.
La ampliación (de 37 m2) incluye ahora el dormitorio principal y otro baño, junto a dos patios retranqueados, uno como punto de unión con el jardín y el otro a modo de transición entre la herencia de la primera mitad del siglo XX y los tiempos modernos. Este último se convierte en un área abierta y multifuncional gracias a los abundantes acristalamientos de suelo a techo del anexo, las puertas correderas y los voladizos.
La abertura sobre el tejado a dos aguas en el nuevo cuarto de baño lo inunda de luz natural. También destaca el revestimiento integral del anexo con un sistema metálico acabado en resina Kynar 500 de tono carbón. Su efecto unificador de volúmenes aporta armonía entre ambos estilos.

















