La importancia de la madera en la Casa de Julia y Björn
La decoración en madera aporta siempre calidez y sensación de bienestar a una vivienda. Esto lo sabe muy bien el estudio austríaco Innauer-Matt Architekten, especialista en el sector residencial, que decidió llevar esta máxima un poco más allá.


A la hora de diseñar una casa en la pequeña localidad de Egg, en el extremo occidental del país, Sven Matt y Markus Innauer pensaron que podrían usar la madera de los bosques cercanos para literalmente forrar el interior y el exterior. Así nació la Casa para Julia y Björn, llamada así en honor a sus clientes.



Flanqueada por un tilo y un nogal, lo primero que destaca en esta vivienda de dos plantas es ese entramado de listones de madera que cubre toda la fachada. Además del chocante efecto visual, esta especie de celosía la protege de los cambios bruscos del tiempo, frecuentes en esta región.


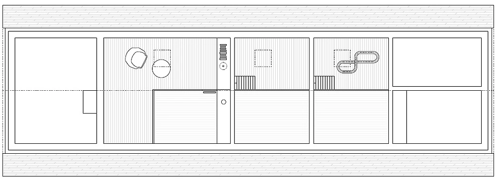
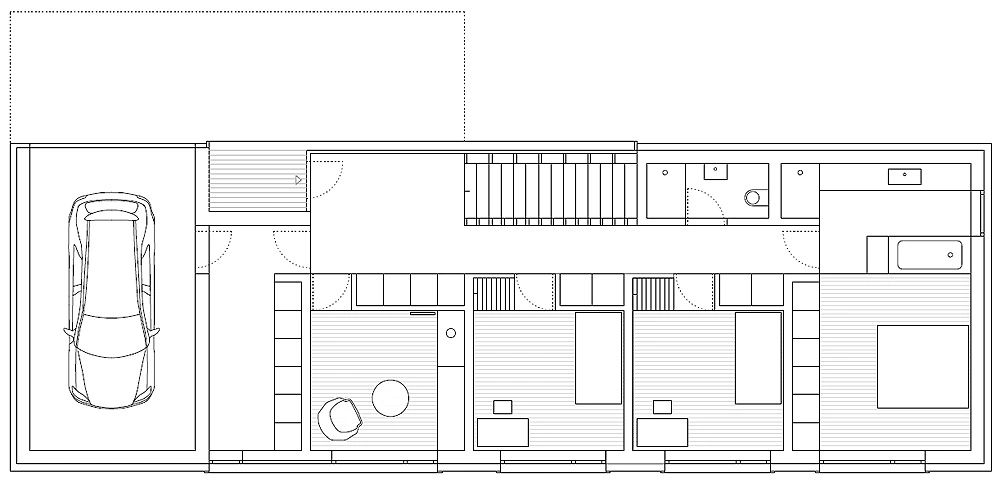
Respecto a la disposición interior, se adapta a la pendiente de la colina donde se asienta, con un primer piso a pie de carretera que acoge los dormitorios, los baños, el garaje y la entrada principal. La planta baja se organiza en torno a una chimenea central que divide los espacios abiertos comunes de salón, comedor y cocina.

Este nivel inferior se abre al paisaje circundante mediante dos amplias terrazas cubiertas. Además, esta cara dispone de amplios ventanales para disfrutar de las vistas del valle y las montañas, asegurando una estupenda iluminación natural durante el día.

Las escaleras interiores ocultas proporcionan espacios diáfanos y dan una gran sensación de independencia a cada planta. Por otra parte, la acentuada pendiente del tejado permitió la inclusión de numerosos altillos en el área de descanso. Estos espacios tipo loft, con acceso a través de escaleras de mano y de peldaños, son ideales como zonas de juego para los niños o como refugio para una lectura tranquila.

El calor de hogar se potencia mediante el revestimiento casi integral de los interiores con madera maciza de abeto. Así mismo, la pared de separación que incorpora la chimenea posee un vistoso hueco cuadrado de grandes dimensiones con asiento tapizado. Para contrastar con las superficies de madera clara, esta pared y el techo cuentan con un enlucido especial en tono gris claro a base de yeso y polvo de mármol.

Fotografías: Adolf Bereuter.




Para ver imágenes de una vivienda unifamiliar realizada con un sistema estructural en madera, obra de ÁBATON Arquitectura PINCHA