La Casa MMB aporta savia nueva al viejo Berlín
Las reformas integrales de edificios históricos suponen todo un reto para cualquier estudio de arquitectura. Hoy presentamos la lectura contemporánea de la vieja casona de un molinero alemán, fechada en 1844, y su transformación en un hogar unifamiliar con jardín para una pareja y sus tres hijos de la mano de asdfg Architekten.
El edificio había sido adquirido por un amigo de Philipp Loeper, cofundador de esta firma de Hamburgo, y se trataba de la construcción más antigua de Prenzlauer Berg, un barrio con pasado comunista muy popular en el Berlín actual.
Al estar catalogada como patrimonio histórico, las autoridades exigieron reconstruir la fachada tal y como aparecía en un dibujo de la época de su construcción. Sin embargo, el estudio no deseaba que el exterior fuese un calco del original. Así pues, tras numerosos enfoques, visualizaciones y maquetas, optaron por una propuesta de líneas rectas, sobria pero con unos elementos de profundidad variable que recrean mediante luces y sombras los volúmenes de 1844. Esta evocación abstracta fue finalmente aprobada por el ayuntamiento berlinés.

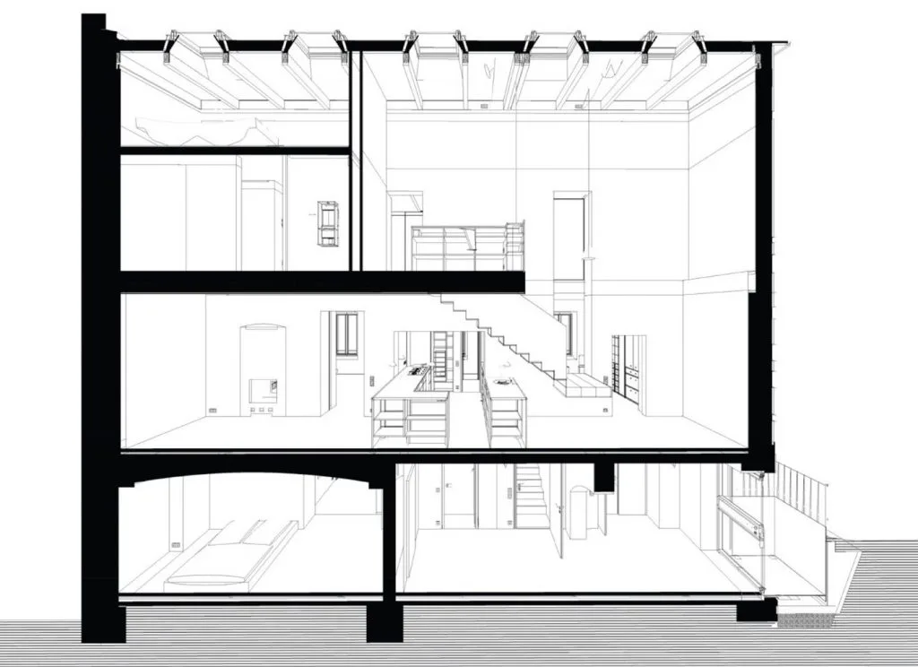
Solventadas las restricciones del planteamiento externo, tocaba dar forma a la distribución interior. Como la casa se había utilizado anteriormente como taller y comisaría, estaba dividida en muchas habitaciones pequeñas. Para adaptarla al uso familiar se demolió todo salvo las paredes exteriores y un muro central de carga.
Se creó así un nuevo concepto espacial, con las habitaciones de los niños, la escalera y la cocina ligadas a la pared central. La escalera interior se dividió en dos partes. La primera -de solo cinco peldaños- desemboca en una plataforma en la que disfrutar de la gran altura de la estancia principal.


El segundo tramo está suspendido de una galería abierta que va de pared a pared, delimitando las zonas de trabajo y descanso de los padres, separadas por una gran puerta corredera.
Las viejas paredes de ladrillo patinado dan carácter al interior, mientras la madera de las vigas originales luce ahora renovada en las escaleras y la cocina. Dada la estrecha amistad del dueño con Loeper, el proceso de diseño fue muy colaborativo, dando lugar a abundantes piezas personalizadas. Armarios, persianas, lavabos e incluso la bañera se realizaron a medida para esta Muellerhaus Metzerstrasse Berlin (MMB).
La ambientación interior combina texturas modernas e históricas, aportando varios detalles prácticos, como los elementos de almacenaje bajo las escaleras de acceso a las camas de los niños. Ladrillos, hormigón visto y cálidas superficies lisas se combinan para rejuvenecer con encanto este enclave decimonónico de un Berlín que ya no volverá.
Fotografías: Michael Pfisterer.











