La acogedora casa rural de LTD se inspira en los colonos neozelandeses
Enclavada en una ladera y rodeada de arbustos, la neozelandesa Back Country House responde al concepto de cabaña aislada dentro de la naturaleza. A pesar de encontrarse cerca del pequeño pueblo de Puhoi –a tan solo 50 km al norte de Auckland–, parece estar totalmente apartada del mundo.
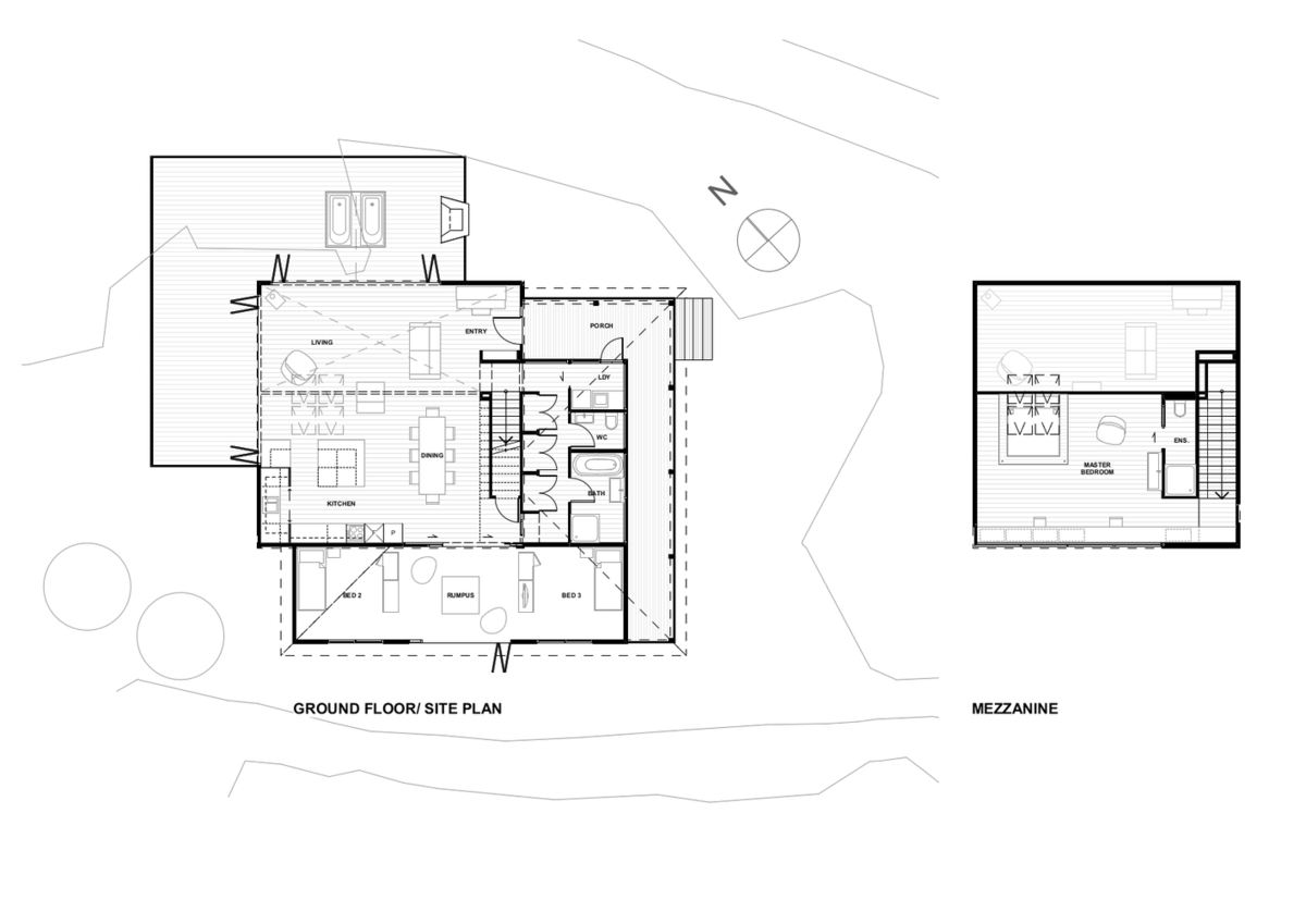
Es justo ese aspecto de refugio de pioneros el que buscaba potenciar la firma local LTD Architectural Design Studio cuando se hizo cargo del proyecto. En aras de la simplicidad, se diseñó un solo volumen para desarrollar la vida cotidiana y un anexo inclinado donde dormir.
Se primaron los espacios abiertos para compartir vivencias, como la amplia cocina-sala de estar, provista de acristalamientos que pueden abrirse por completo en dos de sus lados. Se crea así una sensación de libertad, de vivir al aire libre, incrementada por la instalación en la terraza de una chimenea de hormigón y dos bañeras gemelas hundidas bajo los listones de madera. Las vistas panorámicas son impresionantes desde este lugar privilegiado que domina todo el valle. Cuando no se usan, las bañeras desaparecen gracias a una tapa, que sirve también como tablero de una inusual mesa de comedor para toda la familia.
El interior de la planta baja viene marcado por la madera y el color blanco en paredes y mobiliario. Aquí, un fino tabique deslizante separa el área de los niños, con dormitorios abiertos junto a una zona de juegos y otro acceso acristalado al exterior. El espacio se completa con el baño principal, provisto de una claraboya en el centro para aprovechar la luz natural.
Una escalera flanqueada por estanterías conduce a la buhardilla, otra área abierta que cuenta con un armario empotrado, el dormitorio principal y un pequeño tocador. Desde la cama, iluminada por cuatro tragaluces y parcialmente suspendida, se puede ver la sala de estar. Por último, dos grandes ventanales sobre la zona doble de escritorio ofrecen unas vistas magníficas a la hora de trabajar con el portátil.
En cuanto a materiales para el exterior, se empleó madera de un aserradero local para conseguir un acabado áspero, además de hierro corrugado y galvanizado en los tejados y parte de la fachada. Junto a una leñera muy bien surtida, dicha elección le da ese sabor rústico de cabaña primitiva con chimenea humeante.






















