Karst House y la revitalición de una casa de piedra tradicional
A veces, los acontecimientos históricos se encargan de modelar un determinado paisaje y, por extensión, el tipo de viviendas de sus moradores. Esto es lo que ocurrió con la región italo-eslovena de Karst. En su día fue una gran extensión cubierta de robles, hasta que los venecianos necesitaron la madera para construir su espléndida ciudad sobre el agua.
Lo que supuso la grandeza para unos, provocó un cambio de costumbres en otros, que vieron cómo la erosión y el viento sacaban a la luz la piedra caliza de los antiguos bosques. Este paisaje kárstico de mesetas calcáreas condicionó la arquitectura de sus habitantes, que pasaron a construir casas pequeñas, compactas y con pocas ventanas, aprovechando esas rocas abundantes como material principal.
Hoy presentamos una relectura moderna de estas edificaciones austeras que se han mantenido hasta nuestros días. Se trata de la Karst House, una vivienda familiar de 92 m2 proyectada por el equipo de Dekleva Gregoric Architects, liderado desde Liubliana por Aljoša Dekleva y Tina Gregorič.
Situada en Vrhovlje (Eslovenia), la casa se diseñó para una familia joven, dándole ese carácter monolítico de hogar de piedra tradicional, pero adaptado a la forma de vida contemporánea en el campo.
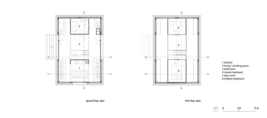
El espacio interior está dividido en dos niveles bien diferenciados. La planta baja es la zona de reunión con grandes vistas hacia el paisaje rural, mientras que el piso superior resulta más íntimo, y donde la ausencia de ventanas se compensa con varias claraboyas.
Este espacio está dividido por dos grandes volúmenes de madera intercalados, que contienen una cocina con comedor y un baño en la planta baja y el dormitorio principal y la habitación de los niños en el nivel superior. Este concepto de una casa dentro de otra crea la agradable sensación de que cada dormitorio es una pequeña cabaña individual y no una simple habitación. El puente que conecta ambas habitaciones sirve, además, de cuarto de juegos abierto para los pequeños.
La inclinación envolvente del tejado, así como el aspecto, el color y la textura exteriores de la fachada, realizada con técnicas contemporáneas, son un guiño mimético más a los pueblos típicos de esta región de Karst.
Fotografías Janez Marolt















