El ingenio de Charles Pictet convierte un establo suizo en un sorprendente estudio
Un antiguo establo para vacas con un granero donde almacenar el heno no parece a primera vista un material de partida demasiado interesante para audacias constructivas. Y más aún cuando la planta baja ha de dedicarse por completo a aparcamiento de vehículos como consecuencia del reparto de una herencia.
Sin embargo, el arquitecto suizo Charles Pictet (Ankara, 1963) asumió el reto que planteaba transformar ese viejo edificio en el estudio de un artista dejando diáfano todo el espacio inferior.
Situado en Landecy, una pequeña localidad del cantón de Ginebra, formaba parte del modelo de caserío agrícola en el que las estructuras se agrupan en torno a una casa señorial. Esta disposición era muy frecuente en la región durante el siglo XVIII, ya que los propietarios pasaban los inviernos en la ciudad, pero los veranos regresaban al campo.
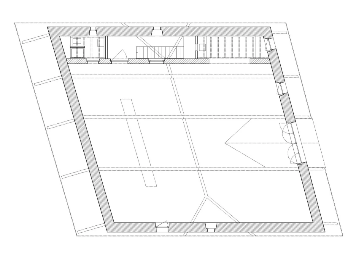
El cambio drástico de uso empezó con la creación de un suelo que generase la zona de taller del piso superior. Esto se consiguió mediante un forjado reticular en madera de 120 cm de altura que cruza toda la superficie de la planta baja (15 metros de longitud) sin necesidad de apoyarse en ningún pilar intermedio. El sistema de vigas se cubrió después con tablas del mismo material, obteniendo un conjunto muy sólido.
El acceso al nuevo piso se efectúa mediante una larga escalera de dos tramos alineados, colocada en un espacio diferenciado, alto, estrecho y sin calefacción. En contraste, el estudio y las zonas de servicio contiguas son las únicas estancias habitables y climatizadas. En estos 246 m2, el color blanco, la ausencia de acabados superfluos y una excelente iluminación toman el protagonismo. Es admirable la amplitud de esta sala si tenemos en cuenta que no se asienta sobre apoyos interiores.
En cuanto a la planta baja, toda la carpintería se restauró empleando métodos tradicionales para preservar la dilatada historia del edificio. Por el mismo motivo se conservaron varios elementos originales, como alguno de los pesebres o las aberturas de comunicación interior.
Esta respetuosa reforma integral de Charles Pictet fue premiada en 2014 con la Distinction Romande d´Architecture y el Arc-Award.













