Humo House y las dualidades arquitectónicas
Ubicada en la costa de un lago chileno descubrimos la Humo House, de Iván Bravo, una exploración de las dualidades arquitectónicas y un proyecto de adaptación a su medio. Esta vivienda logra conjugar la esencia de un paisaje natural que demanda respeto y contemplación con un diseño arquitectónico sobrio que conecta con la esencia natural.
CONTRASTES COHERENTES Y DUALIDADES ARQUITECTÓNICAS
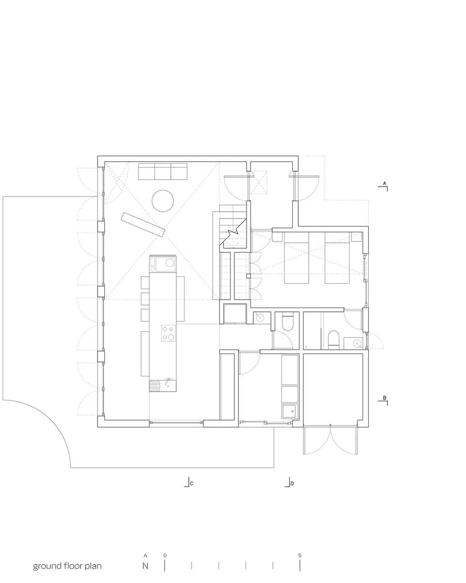
La Humo House se distingue por su estructura simple y racional basada en los contrastes coherentes. Dividida en dos volúmenes, la vivienda crea un diálogo muy presente entre el interior y el exterior y los diferentes espacios funcionales.

Las fachadas de mayor altura se orientan hacia las vistas del lago, permitiendo una conexión más íntima con el entorno, mientras que, en contraste, las fachadas más pequeñas evitan las vistas hacia el exterior en una búsqueda de introspección y protección.

La conexión visual con el exterior es fundamental para entender el espíritu de la Humo House. Es un refugio donde la naturaleza y la arquitectura coexisten en armonía, ofreciendo a su vez espacios para la intimidad.

DISTRIBUCIÓN CON INTENCIÓN
La disposición interior de los espacios se rige también por la dualidad de lo público y lo privado, divididas en ambas mitades de la vivienda. Los espacios públicos se organizan en la zona de mayor altura, creando sensaciones de amplitud y conexión con el exterior. En contraste, las zonas privadas se disponen hacia los espacios de menor altura, sugiriendo una mayor intimidad y recogimiento. La división de estas áreas se basa en conceptos tradicionales de arquitectura, reinterpretándolos en su contexto contemporáneo.


EL MIMETISMO DE LA ARQUITECTURA
La madera, protagonista indiscutible del proyecto, se trata de un revestimiento de fresno intencionalmente escogido para mimetizarse con la bruma típica de las mañanas en la zona. La casa, que parece emerger entre las copas de los árboles, se adapta a su entorno desde el respeto y la comprensión de sus atributos.

Este proyecto representa un ejemplo de arquitectura respetuosa, un ejercicio de humildad y reflexión acerca del papel de la arquitectura y su función en su contexto. La Humo House entiende la arquitectura como una herramienta que debe trabajar de la mano con la sostenibilidad y el respeto, asumiendo una posición silenciosa y en coherencia con la preexistencia.
Iván Bravo ha logrado crear un espacio donde la simplicidad y la elegancia se encuentran en perfecta sintonía. Ofrece una lección magistral de arquitectura contemporánea donde las dualidades arquitectónicas y los contrastes se convierten en protagonistas de una historia coherente.





