Casa Na
Proyecto de Sou Fujimoto para una pareja de jovenes en un barrio tranquilo de Tokyo.
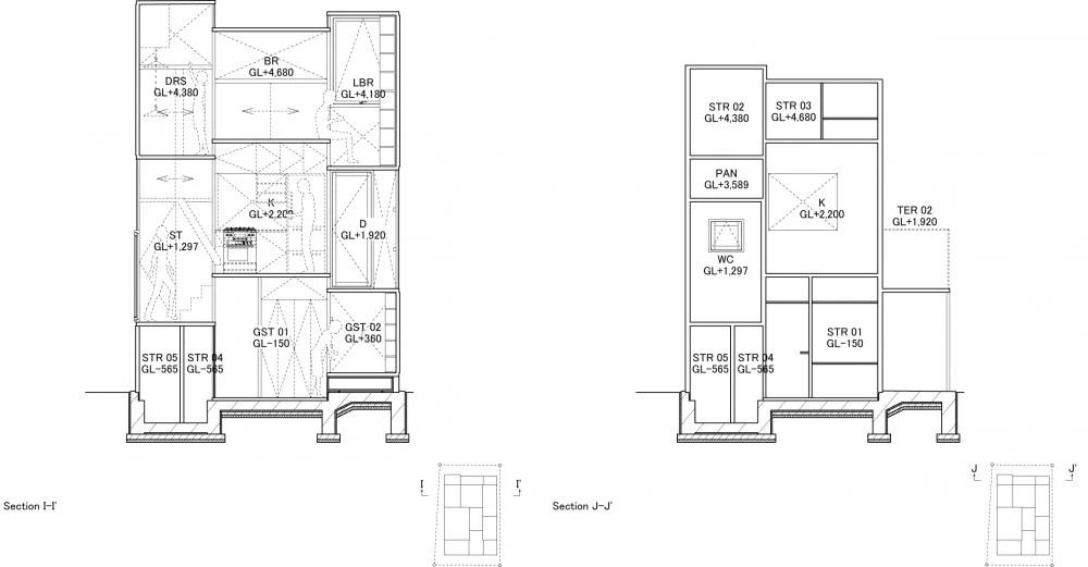
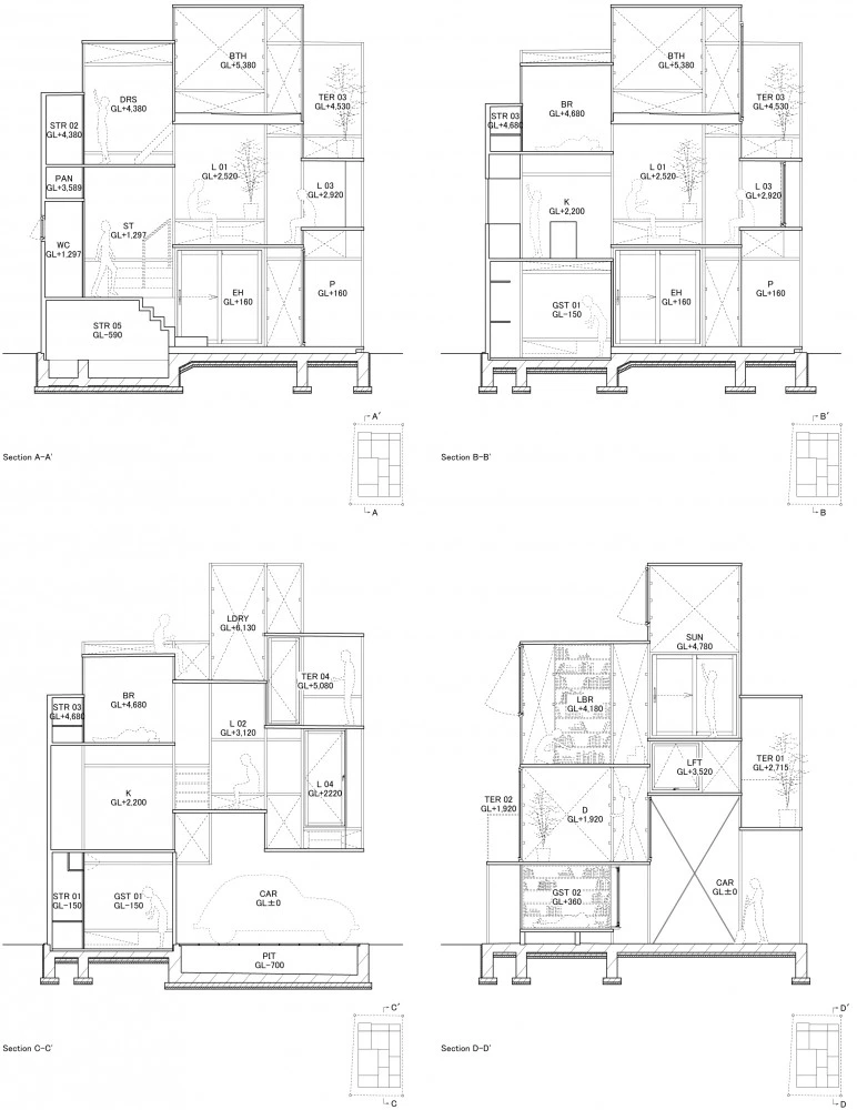
Los 278 m2 transparentes contrastan con los típicos edificios de ladrillo que se ven en las zonas residenciales de alta densidad. Se asocia al concepto de «vida dentro de un arbol» el interior de la vivienda se compone de 21 plataformas de pavimento situadas a diferentes alturas que satisfacen la necesidad de los clientes de vivir como nómadas en su propia casa. La vivienda actúa tanto como una casa como una colección de habitaciones; proporciona intimidad si es lo que se busca y puede, al mismo tiempo, alojar un grupo de invitados a través de toda la casa.
Cada plataforma se une a la siguiente mediante diferentes escaleras y escaleras de mano. Algunas de ellas llevan una calefacción incorporada para proporcionar calor en los meses más duros del invierno, mientras que la carpintería, estratégicamente colocada, maximiza las corrientes de aire que son la única fuente de aire fresco en verano.
Fotografías Iwan Baan






