Hirvilammi Architects construye su propio hogar finlandés
En los proyectos personales se suele poner un extra de pasión, y si uno es arquitecto, el resultado puede ser realmente brillante. Es el caso de la House H, diseñada por el finlandés Teemu Hirvilammi para su propia familia.
Aunque su forma tradicional con tejado a dos aguas parece que sigue una estética nórdica clásica, las soluciones constructivas son realmente modernas y están adaptadas tanto al emplazamiento como a su entorno.
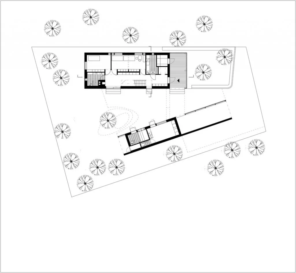
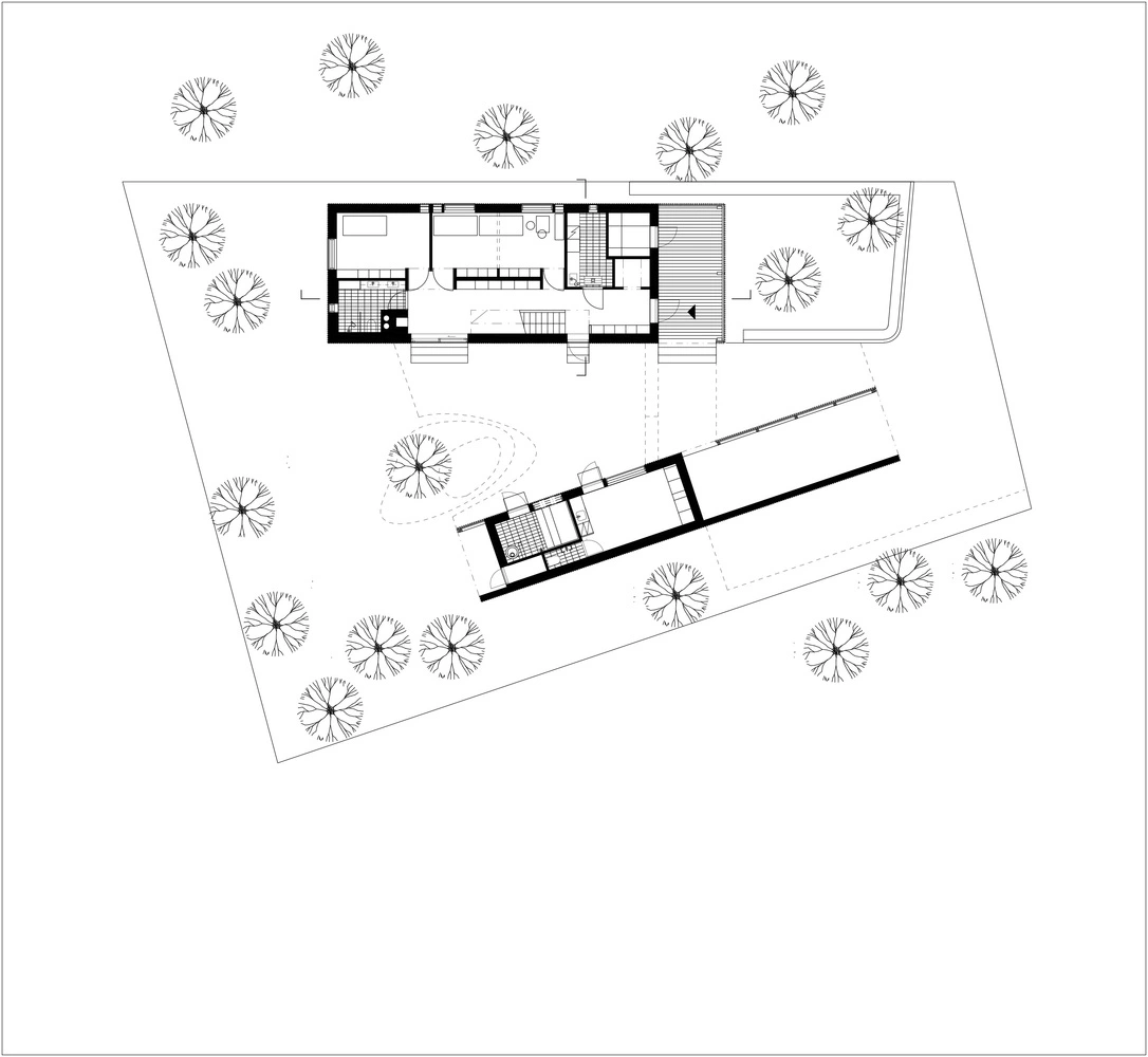
Situada en Kivistönmäki, un barrio residencial de la ciudad de Seinäjoki -a unos 350 kilómetros al noroeste de Helsinki-, la parcela se eligió por estar cerca del colegio de los niños, la estación de tren y la casa de los abuelos. Sin embargo, la estrechez del terreno disponible y su forma de cuña hacían complicado el proyecto.
Después de estudiar múltiples configuraciones, Hirvilammi optó por dividir la casa en un edificio principal y un anexo, orientados en paralelo a los límites de la parcela. Este diseño en V permite optimizar las vistas y, además, crea un área de jardín resguardada entre ambos bloques, ideal para los niños.

El anexo consta de una habitación de invitados, un taller de trabajo y una sauna -algo imprescindible para un finlandés-, mientras que la vivienda familiar presenta una distribución poco convencional. Los dormitorios y el cuarto de servicio ocupan la planta baja, pasando la sala de estar al primer piso. De este modo se aprovecha al máximo la orientación y el paisaje circundante en esta área común con ayuda de unos grandes ventanales. La forma abovedada del techo contribuye a agrandar visualmente aún más el espacio.
Otro detalle diferenciador de la House H es su apariencia exterior, al estar totalmente cubierta de listones verticales de madera pintados en tono oscuro. Aquí se buscó una protección solar pasiva y un contraste atractivo frente a la claridad nórdica del interior, forrado en madera de abeto sin tratar.
Para poder disfrutar al aire libre de la panorámica del bosque, se incorporó un porche en el extremo más próximo al anexo, que hace las veces de terraza y solárium. Así mismo, el techo de metal, la chimenea y las tuberías de desagüe ponen un contrapunto brillante a la oscuridad de la fachada.
El arquitecto finés también ha querido homenajear en su nuevo hogar el trabajo de las empresas forestales que ocupaban el barrio antes de convertirse en zona residencial. De ahí que toda la labor de ebanistería haya sido realizada por artesanos locales. Una tarea minuciosa en la misma línea del mobiliario, compuesto en su mayoría por obras de Alvar Aalto y Nikari Oy.
Fotografía Jussi Tiainen
















