Haffenden House, un monolito seductor para escritores
El arquitecto Jon Lott, director del estudio neoyorquino PARA, firma una peculiar ampliación de vivienda en un barrio residencial de Syracuse. Diseñada para dos poetas e inspirada en el proyecto «Ice House» de Gianni Pettena (1972), el monolito blanco de la Haffenden House destaca muchísimo sobre la silueta del resto de casas del vecindario.
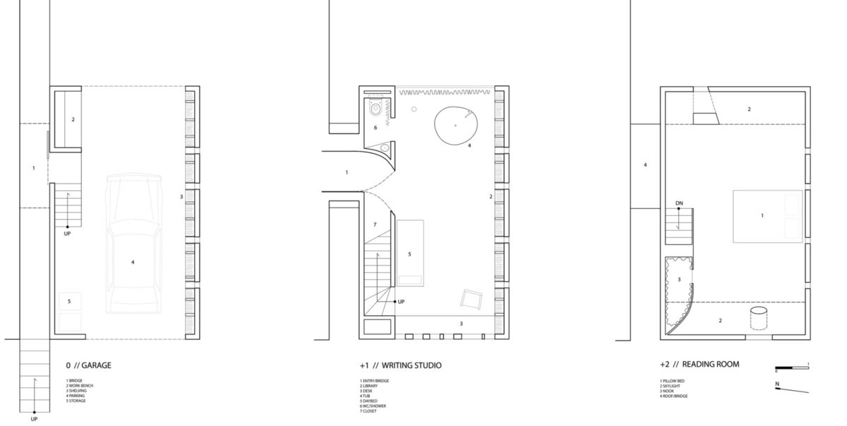
La irrupción de este volumen ultramoderno contrasta violentamente con su entorno, subrayando así el individualismo consustancial a la propuesta. Organizado en tres niveles, el estudio consta de un garaje en la planta baja, una biblioteca con espacio para escribir en el primer piso y una sala de lectura en el segundo.
Una retahíla de cristales translúcidos de todos los tamaños dibuja un singular cuadro abstracto en la fachada. Además de actuar como composición decorativa, crea una fuente eficaz de luz difusa para los pisos superiores. Así mismo, al no proporcionar imágenes nítidas del exterior, evita distracciones visuales en el estudio y favorece la atmósfera creativa.
En el costado oeste, por su parte, la sucesión de aberturas –esta vez en cristal transparente– se hace mucho más estrecha para respetar la intimidad de los propietarios. El tramo central de esta serie se alinea con los estantes de la librería como si cada rendija simulase un volumen retirado de la infinita biblioteca. Este sencillo truco rompe la continuidad excesiva a la que son proclives estos espacios, animando mucho la zona.
La rigidez geométrica sin fisuras de la Haffenden House oculta una división en forma de cuenco entre la primera y la segunda planta. Esta inusual disposición maximiza la luz indirecta y aporta un aire original a ambos pisos, dando lugar a dobles alturas en los dos márgenes de la habitación central.
Pero si hablamos de detalles poco habituales, cabe destacar la bañera circular del área de escritura. Ubicada junto al ventanal de suelo a techo que da al patio trasero, es ideal para relajarse in situ tras una jornada de trabajo creativo. Una cortina de tela blanca permite controlar fácilmente el nivel de privacidad deseado.
Por último, la conexión del retiro artístico con la vivienda principal queda resuelta mediante un paso elevado rematado en arco. Así se puede acceder a este paraíso independiente desde el lateral de la casa tradicional o desde el garaje. Porque nunca se sabe en qué momento llegará la inspiración…












