Goetsenhoven House: diseño abierto para un cambio de look radical
A la hora de renovar por completo una casa, no siempre es necesaria una gran intervención en toda la estructura. A veces, basta con un enfoque original para transformar un edificio que no destaca especialmente en un referente del diseño actual. Prueba de ello es la Goetsenhoven House, situada en las afueras de la ciudad belga de Tienen.
Cuando recibió el encargo de convertir una casa tradicional –con su tejado a dos aguas– en una vivienda espaciosa, abierta y contemporánea, el estudio local AST 77 Architecten planteó una estrategia atípica. En lugar de una demolición radical del volumen principal, el arquitecto Peter Van Impe ideó una combinación de elementos que optimiza la orientación y saca el máximo partido a una parcela de 354 m2.
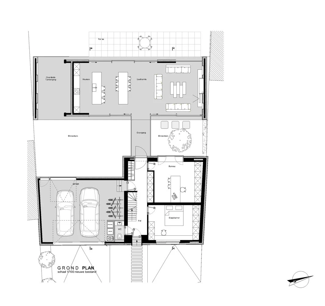
En primer lugar, se eliminaron todos los pequeños anexos construidos a lo largo de los años, manteniendo solo el núcleo principal. Una vez despejada el área, se añadieron dos nuevos volúmenes de una sola planta: un garaje amplio (que alberga también las instalaciones técnicas) y el elemento diferenciador, todo un pabellón independiente.
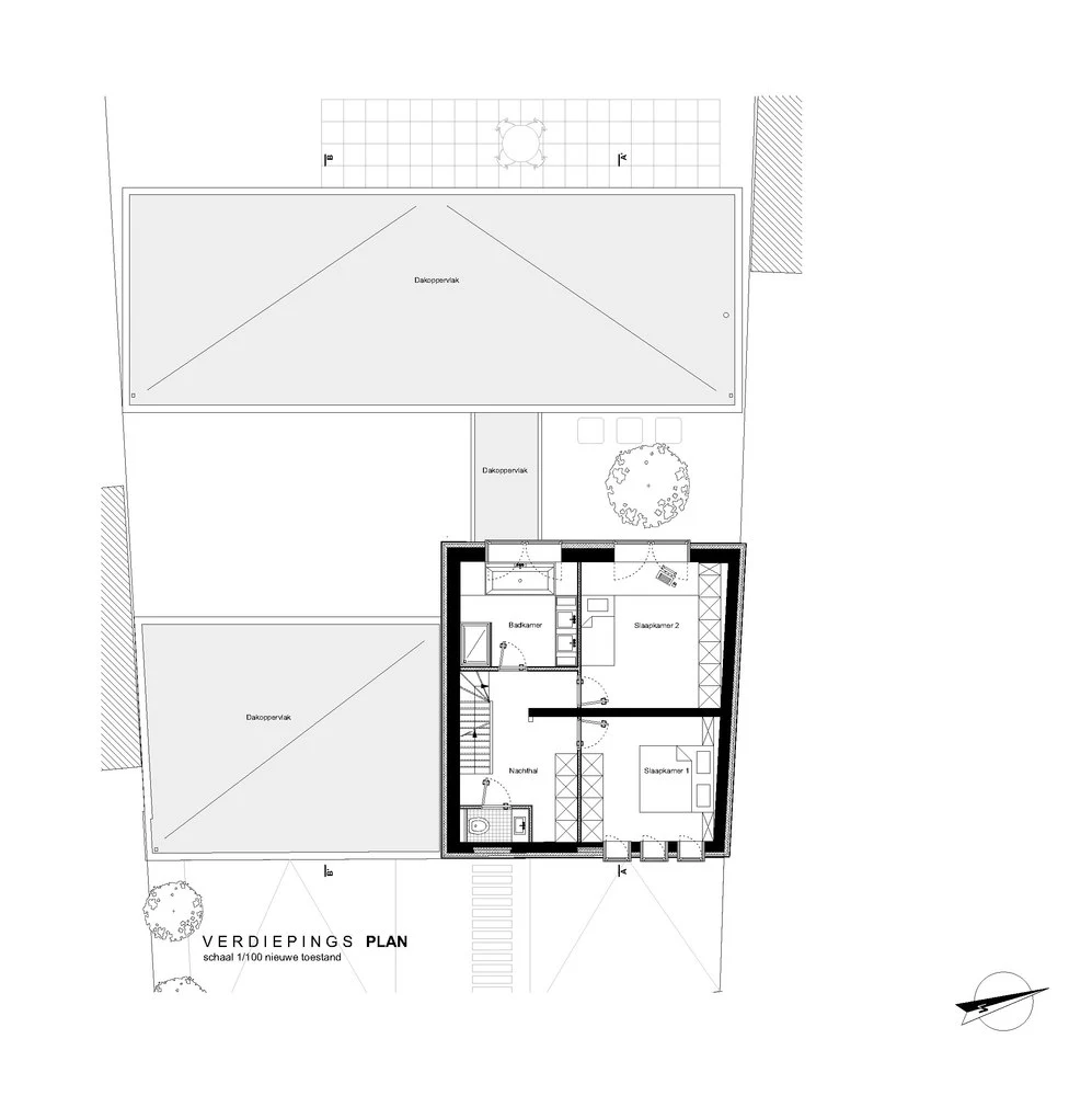
El nuevo espacio abierto, con generosos acristalamientos de suelo a techo, se ubica en la parte posterior de la parcela y ofrece unas vistas estupendas de los campos y el entorno arbolado. La casa se divide así en dos zonas conectadas mediante un pasillo de cristal: el edificio original acoge una oficina y los dormitorios de toda la familia, mientras que el módulo añadido es un espacio de reunión diáfano que incluye la cocina, el comedor y la sala de estar.
Con esta disposición, cuando los niños duermen, los padres pueden seguir con sus actividades sin molestarles. Además, la gran superficie transparente permite la conexión visual entre zonas. Por otra parte, el pasillo acristalado define dos patios interiores para que entre la luz del sol tanto por la mañana como por la tarde.
Respecto a los materiales, Van Impe optó por revestimientos de madera y fibrocemento. Los listones de Thermowood en la planta baja potencian la verticalidad, al tiempo que garantizan un envejecimiento uniforme. En cuanto al primer piso, se escogió un acabado gris y un dibujo de paneles horizontales con patrón aleatorio para equilibrar las proporciones del edificio.















