Gimnasio del Colegio Maravillas
Por Alejandro de la Sota
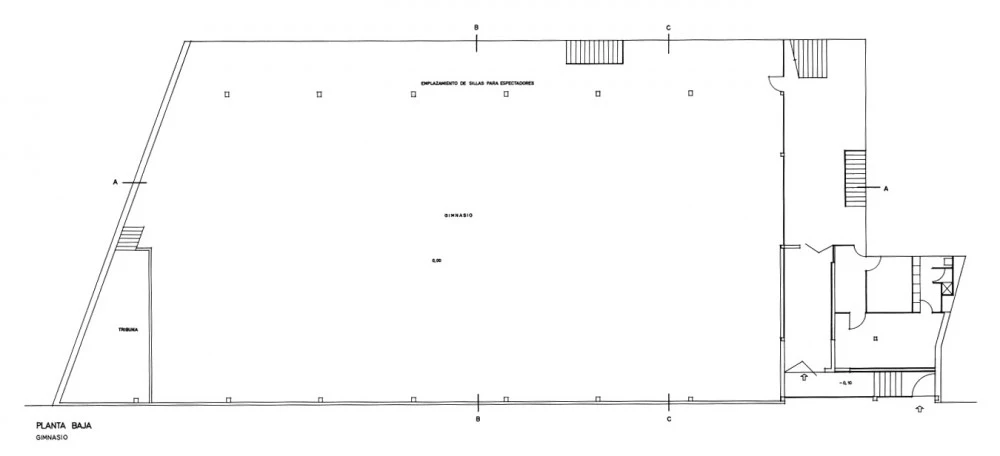
«Fue un gran acierto inicial el aprovechamiento para Gimnasio del terreno en la fuerte ladera existente entre el actual Colegio y la calle de Joaquín Costa. Fue firme la decisión de llevar la obra adelante a pesar de ser de las que, por su propia naturaleza, no favorecen a sentir en sus comienzos la alegría de hacerlas. Fue un premio a estas virtudes el que la obra, terminada, devolviese con su acogedora presencia aquellos esfuerzos primarios.
Puede decirse que solamente podría tener un fin semejante a Gimnasio un solar y un terreno como el elegido para construirlo. Tenía que ser destinado a edificio de gran volumen único con una sola luz lateral: la orientación, afortunadamente, a mediodía.
La forma en que se resolvió la sección determinó y exigió los demás pormenores y pormayores de su construcción. Representó auténtica ruptura en el momento de su aparición en escena. Existía entonces más el sentido arquitectónico en sí mismo que un tan fuerte funcionalismo determinante de una tan definitiva arquitectura. Es obra coherente desde su planteamiento general hasta cualquiera de sus detalles, logrados más por la adaptabilidad a su necesidad que por una predisposición arquitectónica dada.
Es normalmente obligado el cubrir las grandes luces con cubierta ligera que, por tanto, no aguante pesos considerables sobre ella. Es decir, un gimnasio, un cine, un teatro, iglesia, etc…están en la línea de los edificios que deben cubrirse de forma parecida a una tartana. Otra solución es, principalmente, anti-económica.
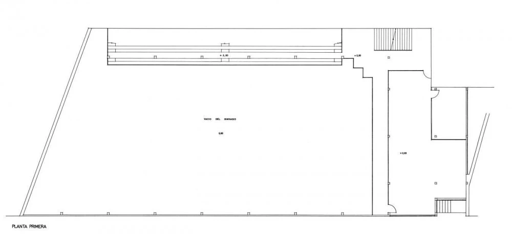
Aquí, el problema es opuesto. Lo que supondría economía grande como construcción sería una grave pérdida como aprovechamiento del solar y lo peor, no resolvería tantos problemas de espacio como los que tiene planteados un gran Colegio enclavado en solar céntrico de una población.- Este tenido en cuenta, cambiados los términos, se proyectó el Gimnasio actual.- Planta baja, gimnasio, pista. Plantas primera y segunda, aprovechamiento lateral con locales para biblioteca, reuniones de antiguos alumnos, padres de alumnos, etc. Planta tercera, más locales con destinos a otros usos: en su parte lateral, profesores, tuna, etc…y el gran aprovechamiento sobre el vacío del gimnasio: sala de conferencias, museo de ciencias naturales, laboratorio de física y de química, almacenes. Sobre tantas cosas, el gran patio, vida indispensable del Colegio.
Un planteamiento opuesto al normal y perfectamente razonable. Ha cuidado el Colegio que todos los materiales empleados en la construcción fuesen los justos; esto no es corriente ya que el uso indebido del ahorro donde no se debe y del derroche donde tampoco se debe, es justo, lo corriente. En el proyecto se cuidaron cosas como la sonoridad del local, la ventilación cruzada permanente y natural, la iluminación y el sol, y tantos que ahora, otra vez agradecidas, nos alegran el final de obra.”
(Alejandro de la Sota. Hoja mecanografiada. Sin fecha)
Alejandro de la Sota (Arquitecto)
Edificio del año 1962 en Madrid, España
Fotografías: Alejandro de la Sota y Fundación Alejandro de la Sota






















