Fohlenweg: Donde la naturaleza se encuentra con la modernidad
En el corazón de Berlín, en la serenidad perimetral del Bosque de Grunewald, emerge Fohlenweg, una obra residencial que redefine la integración espacial y la sostenibilidad. Este proyecto, a cargo de O’Sullivan Skoufoglou Architects, es un testimonio de cómo el diseño contemporáneo puede honrar el entorno natural y responder a las normativas locales sin sacrificar la belleza ni la funcionalidad. Donde la naturaleza se encuentra con la modernidad.



INTEGRACIÓN CON EL ENTORNO
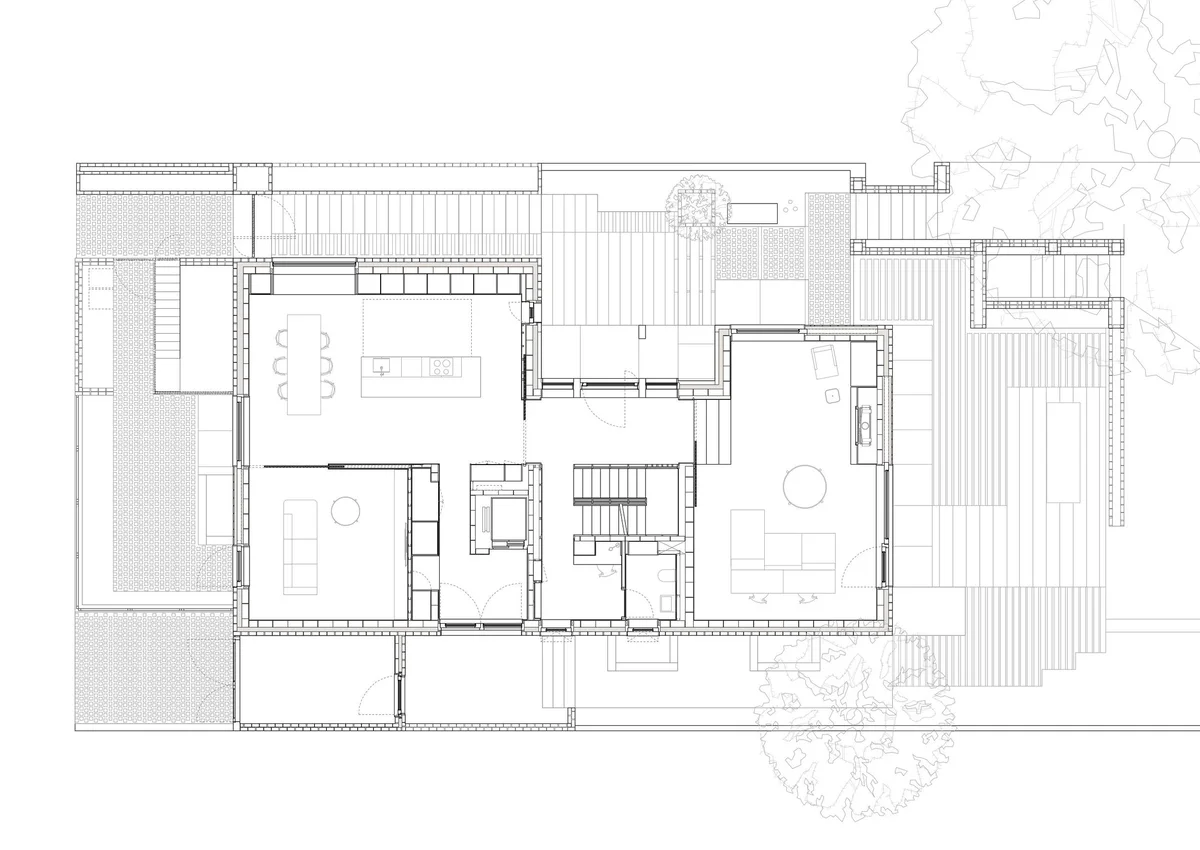
La expansión de una casa existente ha dado lugar a un volumen de dos plantas, cuya forma se inspira en las leyes de planificación del área. Este nuevo diseño no solo busca la cohesión con el paisaje lineal del sitio sino que también facilita conexiones internas únicas a través de niveles variados.



Inspirándose en precedentes como una casa de Charles Moore en New Haven, el equipo de diseño ha creado un vacío rectangular en el corazón del plano, que actúa como un nodo central alrededor del cual gira la vida diaria. Este espacio, flanqueado por el acceso principal y una escalera que ofrece vistas fragmentadas, permite a los habitantes disfrutar de momentos de soledad o reunión, subrayando la importancia de los espacios flexibles en la arquitectura moderna.


LA SOSTENIBILIDAD COMO FORMA DE VIDA
El proyecto destaca por su enfoque meticuloso en la elección de materiales y la construcción sostenible. La fachada, construida con piedra caliza de Alemania del sur, y con estructura de madera maciza prefabricada, no solo garantizan durabilidad y bajo mantenimiento sino que también se integran armoniosamente con la paleta de colores del bosque circundante. Además, la casa aprovecha la energía geotérmica para calefacción y refrigeración, eliminando la dependencia del gas y promoviendo un estilo de vida más sostenible.


Fohlenweg es, por lo tanto, una celebración de la arquitectura que respeta su pasado mientras se proyecta hacia un futuro sostenible. Una demostración de que la verdadera innovación reside en la armonía entre el diseño, la funcionalidad y el respeto por nuestro entorno.

