Escuela Infantil Yamaikarashi: naturalmente con la naturaleza
Ubicada en un entorno natural impresionante, la Escuela Infantil Yamaikarashi, diseñada por Takeru Shoji Architects se inspira en su contexto para crear un espacio que es tanto un refugio como un área de descubrimiento. La decisión de integrar el edificio con el paisaje circundante no es solo un tributo a la naturaleza, sino también una estrategia pedagógica que fomenta la curiosidad innata de los niños hacia el mundo natural. Tiene como objetivo alcanzar los principios de interactuar «naturalmente con la naturaleza».


UNA NUEVA CONCEPCIÓN DEL APRENDIZAJE
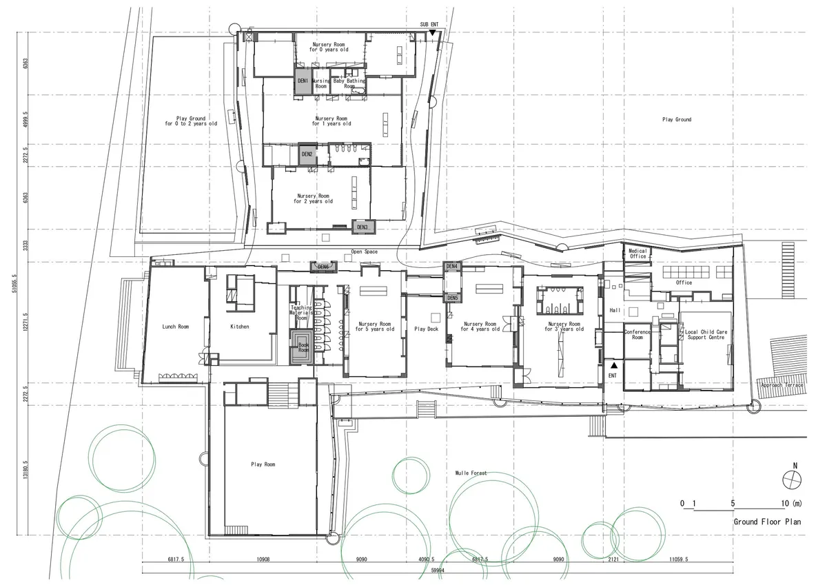
El diseño arquitectónico de la escuela es una manifestación de simplicidad y funcionalidad, con espacios fluidos y versátiles que se adaptan a las diversas actividades de los niños. La utilización de materiales naturales y luz natural no solo crea un ambiente cálido y acogedor, sino que también enfatiza un enfoque sostenible. La conexión visual y física entre el interior y el exterior permite que los niños se muevan libremente, borrando las fronteras entre el aprendizaje estructurado y el juego espontáneo.



Uno de los aspectos más destacados de la Escuela Infantil Yamaikarashi es su capacidad para servir como un recordatorio de que los entornos educativos deben ser lugares donde la creatividad, la exploración y el respeto por el medio ambiente se nutran desde una edad temprana. Al hacerlo, el proyecto se alinea con una visión de la arquitectura que va más allá de la estética y la funcionalidad, para tocar las fibras más profundas de nuestra humanidad y los valores que queremos transmitir a las futuras generaciones.


INTEGRACIÓN CON EL ENTORNO «NATURALMENTE CON LA NATURALEZA»
Además, el diseño pretende establecer una «relación mutuamente vigilante» en la cual todo el pueblo es parte del aprendizaje y juego de los niños, mientras los niños revitalizan el pueblo.
Este proyecto destaca por su enfoque integrador, donde la interacción con la naturaleza se convierte en un pilar fundamental de la experiencia educativa. La escuela no solo es un espacio para el aprendizaje académico, sino también un lugar donde los niños pueden experimentar el crecimiento personal a través de la exploración y la interacción con su entorno. La elección de materiales, la orientación del edificio y la disposición de los espacios están diseñadas para promover un vínculo profundo con el entorno.



La arquitectura de la Escuela Infantil Yamaikarashi invita a repensar el concepto tradicional de los espacios educativos, proponiendo un modelo donde el bienestar emocional y físico de los niños es tan importante como su desarrollo intelectual. Al ofrecer un entorno que estimula la curiosidad y la creatividad, este proyecto no solo mejora la calidad de la educación infantil, sino que también establece un precedente para futuras construcciones escolares.









Descubre también el Kindergarten of Museum Forest: la arquitectura del aprendizaje. Otro ejemplo de la evolución de los espacios dedicados al aprendizaje enfocados en la experimentación y la curiosidad.