En tres direcciones
Las cabañas o retiros, bien en la playa, en el bosque o en la montaña, se han convertido en un subgénero de la arquitectura doméstica, ofreciendo toda suerte de variaciones y a menudo desplegando mayor informalidad y flexibilidad compositiva de lo que suele exigir el diseño de una primera vivienda.
Tal es el caso de la Casa de la Roca, firmada por los talentosos arquitectos Cadaval & Solà-Morales, una delicada intervención en el privilegiado entorno de la Reserva de El Peñón en el Estado de México.
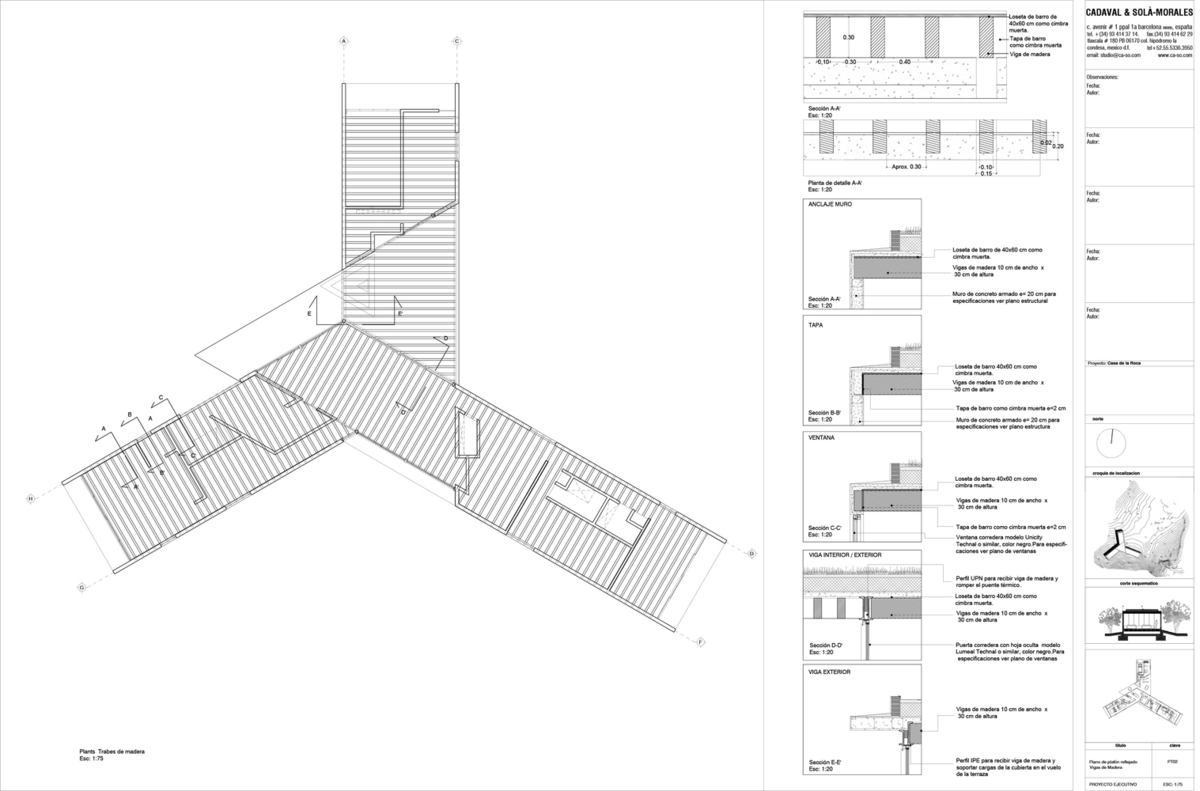
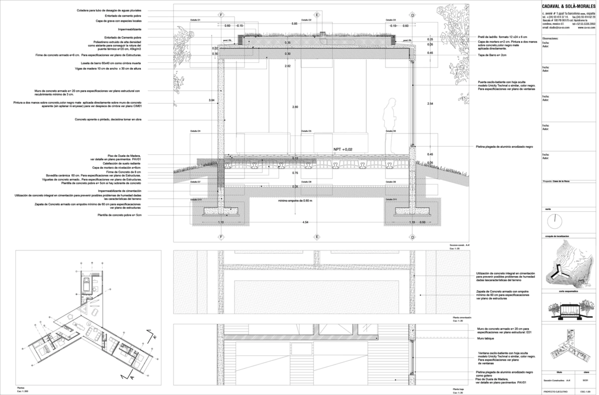
La casa se divide en tres alas que se extienden hacia el bosque con el fin de explotar al máximo las bellas vistas de su entorno. Cada ala se reserva a las zonas más privadas de la casa, con las habitaciones principales al fondo, culminando en grandes ventanales de suelo a techo y en balcones que actúan como miradores al bosque (uno de ellos con leñera incluida).

El gran espacio común de la casa es la intersección de esos tres volúmenes en una amplia zona triangular que incluye la cocina y un salón-comedor con una sencilla chimenea suspendida y que comunica con un patio abierto sobre el que se extiende la cubierta y por el que se accede a la vivienda. Y quizás sea esta, de hecho, la faceta menos visible pero más meritoria del proyecto, pues no es nada fácil resolver en planta la unión de volúmenes ortogonales en un espacio triangular, algo que aquí se ha logrado de forma clara y sencilla, sin generar espacios residuales o ángulos feos.
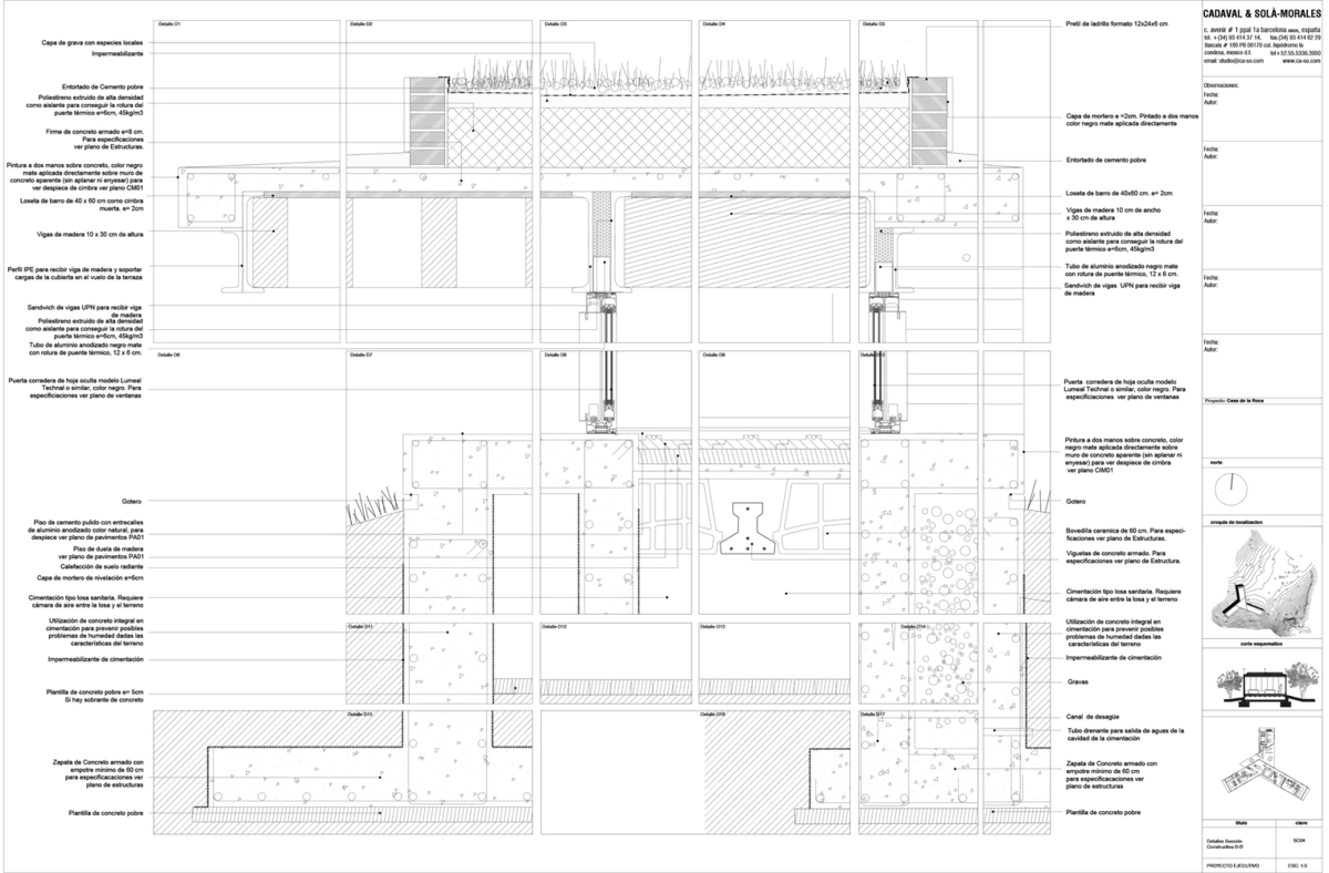
Destacan también los acabados de esta obra, como la cubierta vegetada que, junto a la baja altura del edificio, la camuflan entre el denso arbolado. Asimismo, el hormigón de las fachadas ha sido expresamente pintado en negro para minimizar su impacto visual en el bosque y facilitar su mantenimiento. En el interior, las vigas expuestas de madera, los muros de hormigón visto y los suelos, también en madera o en gres, ofrecen un ambiente cálido y acogedor. En suma, un capricho muy logrado.






















